Градостроительная политика в СССР (1917-1929). От города-сада к ведомственному рабочему поселку - Марк Меерович
Книгу Градостроительная политика в СССР (1917-1929). От города-сада к ведомственному рабочему поселку - Марк Меерович читаем онлайн бесплатно и без регистрации! Читать онлайн вы можете не только на компьютере, но и на андроид (Android), iPhone и iPad. Наслаждайтесь!
174 0 23:28, 20-05-2019Книга Градостроительная политика в СССР (1917-1929). От города-сада к ведомственному рабочему поселку - Марк Меерович читать онлайн бесплатно без регистрации

Рис. 150. Рабочее жилищное строительство в Москве. Жилой дом, предназначенный к застройке на Дубровке (Рогожско-Симоновский р-н). Проект. 1927

Рис. 151. Рабочее жилищное строительство в Москве. Жилой дом, предназначенный к застройке в Хамовническом р-не. 1927

Рис. 152. Рабочее жилищное строительство в Москве. Дом работников милиции. Проект. 1927
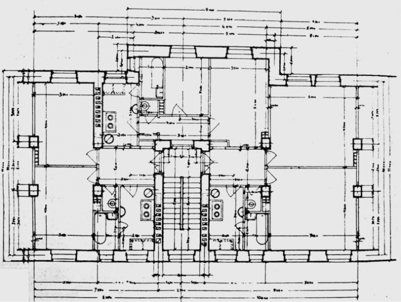
В 1926–1927 гг. Московский совет при возведении жилищ как в «рабочих городских кварталах», так и в «рабочих пригородах» уже всецело ориентировался на тип каменного многоэтажного жилого дома (рис. 150–152). В этот период возводились жилые дома в три, а затем и в четыре этажа, с квартирами в 2–3 комнаты и кухней, центральным отоплением, канализацией, водопроводом, электрическим освещением, водонагревательной колонкой (рис. 153, 154), а там, где это возможно, и с газопроводом. Квартиры заселялись покомнатно-посемейно[506]. Разрабатывались и проекты домов коридорного типа с отдельными уборными и газовыми кухнями в каждой квартире (рис. 155), а также проекты домов коммунального типа – коридорной системы, с общими кухнями, уборными, столовой.

Рис. 153. Рабочее жилищное строительство в Москве. Планировки домов, предназначенных к застройке в 1927 г.

Рис. 154. Рабочее жилищное строительство в Москве. Планировки домов, предназначенных к застройке в 1927 г.

Рис. 155. Рабочее жилищное строительство в Москве. Дом коридорного типа, запланированный к постройке в 1927 г.
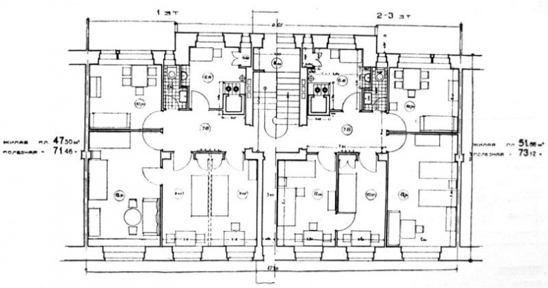
В советской системе централизованного управления всеми сферами хозяйственно-производственной деятельности московский опыт конкурсного проектирования приобретал роль образцово-показательного и если и не являлся официально обязательным, то по меньшей мере был «настоятельно рекомендуемым» для административных органов и проектных организаций всех прочих городов страны. Так, по примеру Московского совета в сентябре 1927 г. конкурс на составление проекта застройки жилых домов для рабочих семей был проведен в Самаре (проводило конкурс МАО)[507] (рис. 156–158). Условия конкурса, подобно конкурсу Моссовета, предписывали осуществлять застройку отведенного участка исключительно многоквартирными 3-этажными зданиями[508]. И хотя квартиры продолжали называться «индивидуальными» и проектировались в 3–4 комнаты[509], с передней, кухней-уборной[510], кладовой для продуктов[511], но фактически являлись коммунальными, потому что предназначались для покомнатно-посемейного заселения (и, в частности, поэтому проектировались без ванн) – в каждую квартиру по две семьи и по одному одинокому жильцу – всего 5–6 чел.)[512].

Рис. 156. Конкурс на составление проекта застройки участка в г. Самаре многоквартирными жилыми домами для рабочих семей. I премия. План. Арх. А. Э. Зильберт, Л. З. Чериковер. 1927


Рис. 157. Конкурс на составление проекта застройки участка в г. Самаре многоквартирными жилыми домами для рабочих семей. III премия. Генплан, Фасад, план. Гражд. инж. Г. Я. Вольфензон. 1927
Прочитали книгу? Предлагаем вам поделится своим впечатлением! Ваш отзыв будет полезен читателям, которые еще только собираются познакомиться с произведением.
Уважаемые читатели, слушатели и просто посетители нашей библиотеки! Просим Вас придерживаться определенных правил при комментировании литературных произведений.
Просьба отказаться от дискриминационных высказываний. Мы защищаем право наших читателей свободно выражать свою точку зрения. Вместе с тем мы не терпим агрессии. На сайте запрещено оставлять комментарий, который содержит унизительные высказывания или призывы к насилию по отношению к отдельным лицам или группам людей на основании их расы, этнического происхождения, вероисповедания, недееспособности, пола, возраста, статуса ветерана, касты или сексуальной ориентации. Просьба отказаться от оскорблений, угроз и запугиваний. Просьба отказаться от нецензурной лексики. Просьба вести себя максимально корректно как по отношению к авторам, так и по отношению к другим читателям и их комментариям.
Надеемся на Ваше понимание и благоразумие. С уважением, администратор My-Books.me.
Оставить комментарий
-
Александра15 январь 09:37
Очень интересная книга! Особенно, если любишь психологию и хочешь понимать себя и других. Обязательно послушаю до конца. Спасибо....
Кригер Борис – Гнев
-
Галина25 май 13:02
Очень уважаю Артема Шейнина, книга замечательная, очень мне близкая по духу.Перечитываю уже второй раз, столько пережитого и не...
Мне повезло вернуться - Артем Шейнин
-
Екатерина11 январь 08:05
Доброе утро. Подскажите пожалуйста как сохранять книги, ставить закладки?...
Подонок - Анастасия Леманн