Градостроительная политика в СССР (1917-1929). От города-сада к ведомственному рабочему поселку - Марк Меерович
Книгу Градостроительная политика в СССР (1917-1929). От города-сада к ведомственному рабочему поселку - Марк Меерович читаем онлайн бесплатно и без регистрации! Читать онлайн вы можете не только на компьютере, но и на андроид (Android), iPhone и iPad. Наслаждайтесь!
174 0 23:28, 20-05-2019Книга Градостроительная политика в СССР (1917-1929). От города-сада к ведомственному рабочему поселку - Марк Меерович читать онлайн бесплатно без регистрации
Попытки учесть реальные возможности строительной отрасли подталкивали архитекторов к использованию доступных строительных материалов, в частности к применению дерева как наиболее дешевого и наиболее привычного для малоквалифицированных (в основной своей массе) строителей, приводили к вынужденному отказу от воплощения «мечты устройства в поселках водопроводов и канализации»[483], центрального отопления. В результате в проектах закладывались люфт-клозеты без промывки водой, устраивались русские печи, обеспечивавшие одновременно приготовление пищи и отопление дома; холодные сени-тамбур для изоляции прямого перетока холодного воздуха и хранения продуктов; «черновые кухни», то есть обособленные помещения при кухне, специально предназначенные для грязной работы – чистки овощей, мытья посуды и хозяйственной утвари, мелкой стирки белья и хранения хозяйственных принадлежностей – и позволяющие за счет выноса сюда всего комплекса грязных работ содержать в чистоте основное помещение «чистовой» кухни, используемое также в роли столовой.

Рис. 139. Блокированный дом для 2 семей рабочих. План. Арх. Н. В. Марковников

Рис. 140. Деревянный 2-комнатный жилой дом для рабочего поселка при Каширской электростанции. План. Арх. С. Е. Чернышев

Рис. 141. Дом на 2 квартиры для трудящихся. Фасад, план. Арх. Н. Е. Лансере. Середина 1920-х

Рис. 142. Рабочий соцпоселок при лесозаводе на станции Бекетовская (г. Сталинград). Двухквартирный жилой дом. План, фасад. 1925

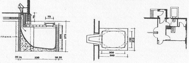
Рис. 143. Устройство люфт-клозета у наружной стены дома с целью обеспечения очистки выгребной ямы

Рис. 144. Система совместного расположения люфт-клозета и печки для поддержания постоянной тяги из вентиляционных каналов

Рис. 145. Совместное расположение люфт-клозета и печки с выносом выгребной ямы. Рабочий поселок-сад в г. Твери. Одноэтажный жилой 2-квартирный дом. Фасад, план. 1924
Все эти решения с неизбежностью оказывали влияние на планировку домов, так как, например, наличие люфт-клозета требовало обязательного расположения его у наружной стены (для обеспечения доступа к выгребной яме для его очистки) (рис. 143), а также максимально возможного приближения туалета к зоне размещения печи (в целях его обогрева и устройства единой «принудительной» вытяжки через дымовую трубу) (рис. 144). Наиболее эффективным оказалось расположение люфт-клозета и печи в центре дома (с большим выносом выгребной ямы), на равном расстоянии источника тепла от всех комнат в целях равномерного отопления всего внутреннего пространства. Например, дом подобной компоновки проектировался в 1924 г. для рабочего поселка-сада в Твери[484] (рис. 145).
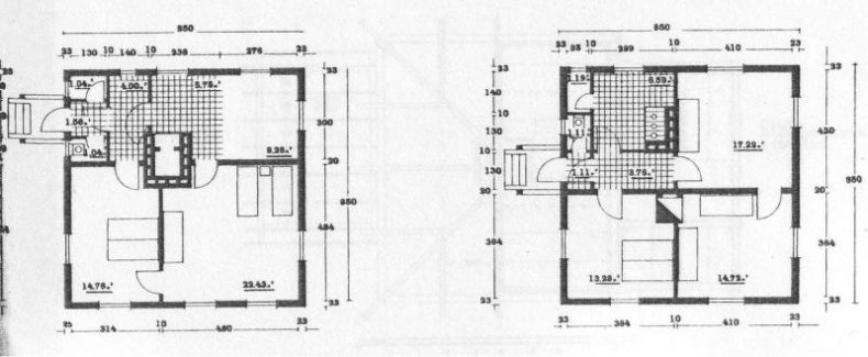
В таких проектах жилые комнаты вынужденно уменьшались в размерах и приводились в соответствие с кубатурой помещения (иначе дров не напасешься). По этой же причине приходилось отказываться от наличия в домах передней или коридора: устройство входов в комнаты из передней или коридора слишком «растягивало» планировку дома и лишало возможности отопить квартиру из одного размещенного в центре теплового источника. В противном случае приходилось устраивать в отдельных помещениях дополнительные печи, что увеличивало трудоемкость возведения и удорожало как постройку, так и последующую эксплуатацию. Помещения, наиболее отдаленные от печи, устраивались с перегородками, не доходящими до потока (для обеспечения циркуляции воздуха), а подчас подобным образом в целях улучшения теплообмена делались вообще все перегородки в доме. Если отсутствовала черновая кухня (то есть кухня, которая совмещала все хозяйственные процессы, в том числе приготовление горячей пищи для скота в зимнее время), то обычная кухня планировочно «подтягивалась» ближе к входу, чтобы не привносить излишней грязи в жилые помещения (рис. 146, 147).

Рис. 146. Расположение кухни и прочих хозяйственных помещений у входа в дом. Одноквартирный деревянный рубленый жилой дом. Проект. 1929

Рис. 147. Расположение кухни и прочих хозяйственных помещений у входа в дом. Парный деревянный каркасный жилой дом. Проект. 1929

Прочитали книгу? Предлагаем вам поделится своим впечатлением! Ваш отзыв будет полезен читателям, которые еще только собираются познакомиться с произведением.
Уважаемые читатели, слушатели и просто посетители нашей библиотеки! Просим Вас придерживаться определенных правил при комментировании литературных произведений.
Просьба отказаться от дискриминационных высказываний. Мы защищаем право наших читателей свободно выражать свою точку зрения. Вместе с тем мы не терпим агрессии. На сайте запрещено оставлять комментарий, который содержит унизительные высказывания или призывы к насилию по отношению к отдельным лицам или группам людей на основании их расы, этнического происхождения, вероисповедания, недееспособности, пола, возраста, статуса ветерана, касты или сексуальной ориентации. Просьба отказаться от оскорблений, угроз и запугиваний. Просьба отказаться от нецензурной лексики. Просьба вести себя максимально корректно как по отношению к авторам, так и по отношению к другим читателям и их комментариям.
Надеемся на Ваше понимание и благоразумие. С уважением, администратор My-Books.me.
Оставить комментарий
-
Александра15 январь 09:37
Очень интересная книга! Особенно, если любишь психологию и хочешь понимать себя и других. Обязательно послушаю до конца. Спасибо....
Кригер Борис – Гнев
-
Галина25 май 13:02
Очень уважаю Артема Шейнина, книга замечательная, очень мне близкая по духу.Перечитываю уже второй раз, столько пережитого и не...
Мне повезло вернуться - Артем Шейнин
-
Екатерина11 январь 08:05
Доброе утро. Подскажите пожалуйста как сохранять книги, ставить закладки?...
Подонок - Анастасия Леманн