Полная энциклопедия домашнего хозяйства - Елена Васнецова
Книгу Полная энциклопедия домашнего хозяйства - Елена Васнецова читаем онлайн бесплатно и без регистрации! Читать онлайн вы можете не только на компьютере, но и на андроид (Android), iPhone и iPad. Наслаждайтесь!
252 0 23:37, 24-05-2019Книга Полная энциклопедия домашнего хозяйства - Елена Васнецова читать онлайн бесплатно без регистрации

Рис. 4. Вариант 3
Если в помещении установить угловую ванну, то она освободит пространство и создаст впечатление простора, однако под нее важно правильно выбрать место. Для получения максимального эффекта придется приложить дополнительные усилия по смещению дверного проема, иначе ванна не встанет туда, куда нужно. Месторасположение унитаза и биде тоже меняют, но не трогают коммуникации. Там, где ранее находилась ванна, теперь будет раковина со столешницей и небольшой шкафчик (рис. 5).

Рис. 5. Вариант 4
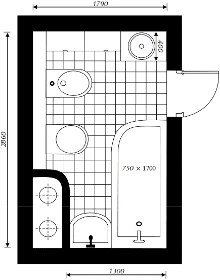
Совмещенный санузел покажется больше, чем он есть на самом деле, если вместо ванны и биде будет установлен душевой бокс. Унитаз следует расположить в углу. Таким образом, центр помещения останется свободным. Санузел будет выглядеть стильно и современно. Рядом с душевым боксом находится полотенцесушитель, а у противоположной стены – стиральная машина. Единственная проблема заключается в необходимости смещать дверной проем (рис. 6).

Рис. 6. Вариант 5
В доме обязательно должно быть место для хранения продуктов питания, которым холодильник не нужен. Для этого существуют кладовые, антресоли, стеллажи. Помимо продуктов, там хранят различные вещи. В общем виде кладовая представляет собой специально выделенное нежилое помещение, где держат банки с соленьями и вареньями, одежду, обувь и прочую домашнюю утварь.
Довольно часто случается так, что жилая площадь весьма ограничена, поэтому жильцы ликвидируют кладовку ради увеличения свободного пространства. Но хранить вещи все равно где-то нужно, и тогда приходится сооружать различные полки, шкафы, которые тоже занимают место. И еще неизвестно, будут ли они оптимальнее, чем кладовка. По этой причине к кладовке стоит отнестись внимательно. Порой наличие кладовки становится необходимым. Естественно, чтобы она отвечала предъявляемым требованиям, кладовка должна быть правильно устроена.
Размеры кладовки варьируются в зависимости от запросов и наличия свободного пространства. По идее, под кладовку подойдет ниша размерами 1 х 1 м, хотя там можно будет хранить только самое необходимое. Лучше выбирать под нее место в северной части квартиры, где попрохладнее. Она должна быть сухой, хорошо вентилируемой, рядом с ней не должно быть источников сильных запахов.
Если в том месте, где предполагается устроить кладовку, проходят инженерные коммуникации (трубы), то их обязательно следует тщательно проверить.
При необходимости трубы красят, устраняют протечки. Может потребоваться замена труб, кранов, и в этом случае надо привлекать специалиста с соответствующим сварочным оборудованием, если сам хозяин не владеет навыками металлообработки. Ликвидация источников увлажнения предотвратит образование в кладовой плесени. Для обработки труб рекомендуется применять грунтовку глубокой пропитки с антибактериальным эффектом.
Места для хранения представляют собой обычные многоярусные полки, стеллажи, как правило, установленные вдоль трех стен. Глубина полок должна быть такой, чтобы проход в кладовку не был затруднен. Лампочку, работающую от электросети, обычно прикрепляют на потолке в центре. Можно расположить стеллажи у одной из боковых стен и у задней стены, тогда в кладовке будет просторнее.
Если разместить стеллажи только у задней стенки, то в помещении останется много свободного места, причем полки на стеллажах могут быть достаточно глубокими для хранения объемных вещей и множества банок с зимней заготовкой. Однако это не может быть не слишком удобно, потому что мелкогабаритные вещи устанавливаются в несколько рядов, и сразу достать необходимое бывает сложно. Полки для стеллажей изготавливают из досок толщиной не менее 2 см. Материал нужно предварительно выровнять рубанком. Вертикальные стойки – бруски квадратного сечения размером 4 х 4 см – распределяют по длине стеллажа с интервалом 1 м. Если их поставить реже, то полки могут прогибаться под тяжестью груза. Глубина полок не должна превышать 70 см, что обеспечит легкий доступ к любой вещи. При наличии просторного помещения под кладовую, стеллажи можно разместить и в центре, но чтобы снизить вероятность падения, поверху их лучше скрепить деревянными рейками со стеллажами, которые фиксированы у стены. Нижнюю полку рекомендуется разместить на высоте около 1 м от пола, чтобы было куда задвинуть крупногабаритное имущество. Уровень расположения остальных полок целесообразно выбрать индивидуально, исходя из того, какие предметы предполагается на них ставить (высота банок и т. п.), с прибавлением к избранной высоте примерно 10 см – так доставать вещи будет проще. Одни полки выделяют под банки объемом 3 л, другие – под 2-литровые. Небольшие банки объемом по 0,5 литра, когда их много и они с однородным содержимым, в целях экономии места можно ставить друг на друга, укладывая между рядами фанеру, картонку или ДВП, но при этом высота между полками должна быть увеличена.
Размещение продуктов и вещей на полках должно быть упорядоченным, т. е. в одном месте сгруппированы, например, банки с маринованными огурцами, в другом – с помидорами, в третьем – с компотами. Ради удобства банки следует снабдить надписями с указанием содержимого и даты консервирования (или же сделать одну надпись для целой секции банок с одинаковым продуктом и заготовленных в одно время).
Еще одним популярным местом для хранения вещей являются антресоли, которые чаще всего устраивают в прихожей над входной дверью или же над проходом на кухню. Будет удобно, если разместить антресоли над гардеробом или вешалкой в прихожей.
В конструктивном плане и с точки зрения технологии изготовления антресоли – сооружение очень простое. Понадобится 2 металлических уголка, необходимое количество досок и пара листов ДСП или ДВП, которая прочнее и плотнее (не прогнется под тяжестью груза). Сначала подбирают уголки нужного размера – по длине они должны быть такие же, как предполагаемая глубина антресоли (как правило, до 1 м). В уголках на некотором расстоянии друг от друга просверливают примерно 5 отверстий диаметром 0,5 см. Первые отверстия расположены в 50 мм от концов уголка, а другие распределяют более или менее равномерно. Потом берут сверло диаметром побольше и раззенковывают отверстия, чтобы шляпки шурупов, которыми уголки прикрепляют к стене, прятались в поверхности уголка, иначе они помешают укладыванию на уголки щита из досок.
Когда отверстия просверлены и раззенкованы, уголки приставляют к стене и через отверстия делают отметки карандашом – здесь высверливают отверстия, куда вбивают пробки. Потом выпиливают нужное для заполнения пространства между уголками количество досок длиной, соответствующей расстоянию между стенами минус толщина металла уголков. Затем из досок сколачивают щит, обивая его с обеих сторон листами ДВП. Сбитый щит лучше всего покрыть краской белого или пастельного цвета. Далее размещают щит на уголках, выпиливают пару реек сечением 3 х 3 см и длиной, соответствующей расстоянию от поверхности щита до потолка, высверливают отверстия в рейках (1 отверстие диаметром 0,4 см ближе к одному краю, а второе такого же диаметра – к другому), вертикально ставят рейки на щит, приставив к стене, и гвоздем через отверстия делают отметку на стене. Сверлят отверстия и вставляют пробки, после чего шурупами прикручивают рейки к стене в вертикальном положении. Осталось прикрепить к рейкам петли и навесить красивые дверцы. На таких антресолях держат все что угодно, начиная с солений и заканчивая обувью, но места там, конечно, меньше, чем в кладовке.
Прочитали книгу? Предлагаем вам поделится своим впечатлением! Ваш отзыв будет полезен читателям, которые еще только собираются познакомиться с произведением.
Уважаемые читатели, слушатели и просто посетители нашей библиотеки! Просим Вас придерживаться определенных правил при комментировании литературных произведений.
Просьба отказаться от дискриминационных высказываний. Мы защищаем право наших читателей свободно выражать свою точку зрения. Вместе с тем мы не терпим агрессии. На сайте запрещено оставлять комментарий, который содержит унизительные высказывания или призывы к насилию по отношению к отдельным лицам или группам людей на основании их расы, этнического происхождения, вероисповедания, недееспособности, пола, возраста, статуса ветерана, касты или сексуальной ориентации. Просьба отказаться от оскорблений, угроз и запугиваний. Просьба отказаться от нецензурной лексики. Просьба вести себя максимально корректно как по отношению к авторам, так и по отношению к другим читателям и их комментариям.
Надеемся на Ваше понимание и благоразумие. С уважением, администратор My-Books.me.
Оставить комментарий
-
Александра15 январь 09:37
Очень интересная книга! Особенно, если любишь психологию и хочешь понимать себя и других. Обязательно послушаю до конца. Спасибо....
Кригер Борис – Гнев
-
Галина25 май 13:02
Очень уважаю Артема Шейнина, книга замечательная, очень мне близкая по духу.Перечитываю уже второй раз, столько пережитого и не...
Мне повезло вернуться - Артем Шейнин
-
Екатерина11 январь 08:05
Доброе утро. Подскажите пожалуйста как сохранять книги, ставить закладки?...
Подонок - Анастасия Леманн