Полная энциклопедия домашнего хозяйства - Елена Васнецова
Книгу Полная энциклопедия домашнего хозяйства - Елена Васнецова читаем онлайн бесплатно и без регистрации! Читать онлайн вы можете не только на компьютере, но и на андроид (Android), iPhone и iPad. Наслаждайтесь!
252 0 23:37, 24-05-2019Книга Полная энциклопедия домашнего хозяйства - Елена Васнецова читать онлайн бесплатно без регистрации
Не стоит совмещать санузел с ванной, когда в семье двое детей и больше; совмещенный санузел не согласуется с общим стилистическим решением жилища; стена между санузлом и ванной несущая. Допустим, все условия соблюдены и совмещение удалось. Что касается отделки объединенного помещения, то вариантов существует множество, на любой вкус и цвет, благо материалов на рынке огромное количество. Чаще всего в ход идет плитка, поскольку она равнодушна к влаге, достаточно прочная, недорогая. Встречается отделка мрамором, камнем, деревом, причем в последнем случае дерево подвергается особой обработке для устойчивости к влаге и повышенной температуре.
Для удобной компоновки совмещенного санузла можно использовать различные идеи необходимых в туалете и ванной предметов. Способствуют экономии пространства, например, компактные модели унитазов, которые прикреп-ляются к стене. Для визуального увеличения пространства применяют мелкую плитку, создавая мозаику, или же делают цветные вставки в однотонном оформлении. Если прикрепить к потолку большое зеркало, то это создаст эффект увеличения пространства. Нельзя забывать о правильном размещении источников света – это или встроенные светильники, или лампочки в специальных плафонах. В любом случае, независимо от того, что именно делать, важно помнить о соблюдении общей стилистики жилья.
Перепланировка требует взвешенного, рационального подхода – тогда от нее будет положительный эффект. Если убрать перегородку между санузлом и ванной, то можно выкроить лишние сантиметры и по-новому обустроить помещение. Главное, чего нельзя делать при перепланировке, – это сносить несущие стены, менять расположения помещений с подведенными водными коммуникациями (ванная, туалет, кухня). Может быть, что при строительстве здания стояки (водопроводные и канализационные) были продублированы с размещением их в разных концах жилища. В этом случае появляется возможность сделать второй санузел (гостевой) с унитазом, умывальником, при чем он может быть совмещенным. Это поможет решить проблему в больших семьях.
При отсутствии второй пары стояков и наличии в семье более трех человек, не рекомендуется торопиться с ликвидацией стен, поскольку впоследствии исправить сделанное будет очень сложно. Лучше еще раз взвесить все «за» и «против».
Надо сказать, что совмещение предполагает как строительные работы, так и бумажные, бюрократические хлопоты. Установлен порядок получения разрешения на проведение перепланировки квартиры у соответствующих служб (ЖКХ, БТИ). Придется изменять официальный план квартиры.
Со стороны жильцов должен быть представлен предварительный план, в котором указаны предполагаемые изменения: вероятное перемещение сантехники, изменение местонахождения труб, электропроводки. То есть на деле работы по соединению помещений оказываются лишь малой частью того, что нужно сделать. Наверняка придется обращаться к специалистам по поводу распределения защищенной электропроводки. Когда план будет согласован, можно брать в руки инструмент и приступать к перепланировке.
Рекомендуется дождаться временного отъезда большинства членов семьи. Посему ремонт лучше планировать на лето. Последовательность ремонта такова: сначала убирают перегородку между помещениями, затем подправляют и выравнивают стены, меняют трубы (изменение расположения), потому что они были рассчитаны на раздельные ванную и санузел (довольно часто по стене между ванной и туалетом имеется обогревательная труба – ее можно развернуть к другой стене или поднять). После этого занимаются проведением и ремонтом электропроводки (освещение, розетки, выключатели), стены грунтуют, выравнивают пол бетонной стяжкой (перед предстоящей укладкой кафеля пол лучше залить битумом или смолой для снижения риска затопления жильцов нижнего этажа), отделывают потолок, например, окрашивают водоэмульсионной краской, укладывают напольное покрытие и отделывают стены, куда можно встроить зеркало, чтобы визуально сделать помещение больше. Устанавливают сантехнику, размещают предметы мебели и бытовую технику, подключают ее к электросети, подвешивают различные ванные аксессуары: крючки для полотенца, мыльницы.
Важно заранее подобрать сантехнику и мебель, которую предполагается разместить в санузле, поскольку это определяет масштаб и характер демонтажных работ и особенности перепланировки. Количество доступных вариантов удобной организации пространства во многом зависит от итоговой площади помещения, например, при достаточной площади (свыше 6 м 2) можно установить ванну в центре комнаты, как бы разделяя помещение и отграничивая ею друг от друга остальную сантехнику, размещенную по сте нам. Маленькая площадь не позволит свободно распоряжаться ванной, и ее лучше поставить вдоль задней стенки. В общем виде в совмещенном санузле выделяют несколько зон: банная зона, где имеется раковина и ванна, зона санузла, в которой центральное место занимает унитаз, а также биде (не обязательно), и зона со стиральной машинкой. Будет интересно, если условно выделить зоны, применив к каждой материалы с разных тонов.
В маленьком совмещенном санузле рекомендуются светлые оттенки, но только не белый цвет, а светлые теплые тона – светло-желтый, кремовый, розовый. Вмонтированное в стену зеркало не только расширит помещение, но и придаст ему современность и стильность.
Вот некоторые варианты организации пространства совмещенного санузла. Допустим, сначала имеются небольшие ванная и санузел по отдельности (рис. 1).

Рис. 1. Начальный вариант
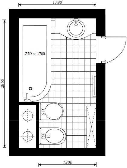
Сантехническое оборудование после совмещения может остаться на тех же местах, что и в отдельных помещениях. Однако площадь, которая освободилась при совмещении, стоит использовать. При желании дополнительные сантиметры можно занять биде или компактным шкафчиком. Трубы идут за унитазом и биде. Чтобы сэкономить площадь, целесообразно использовать консольное оборудование. В интерьере очень удобна будет асимметричная ванна (рис. 2).

Рис. 2. Вариант 1
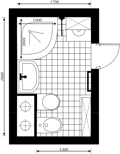
Еще один вариант больше понравится тем, кто предпочитает не обычную лежачую ванную, а просторную душевую кабину. Конечно, в ней не получится комфортно расслабиться, но зато она высвобождает значительное пространство: сюда можно поставить стиральную машину. Ее устанавливают возле душевой кабины, и над ней прикрепляют подвесной шкафчик, где будут храниться различные бытовые и косметические принадлежности. Прочие элементы совмещенного санузла размещены так же, как в предыдущем варианте (рис. 3).

Рис. 3. Вариант 2
После совмещения санузла и ванной комнаты есть нормальная ванна, умывальник и стиральная машина шириной 400 мм. При большом желании можно вместить биде и узкий шкаф. Рабочие элементы консольного биде и унитаза замаскированы под короб, который можно использовать в качестве полки под косметические, умывальные, бритвенные принадлежности. Угол стены, за которой проложены коммуникации, рекомендуется закруглить (рис. 4).
Прочитали книгу? Предлагаем вам поделится своим впечатлением! Ваш отзыв будет полезен читателям, которые еще только собираются познакомиться с произведением.
Уважаемые читатели, слушатели и просто посетители нашей библиотеки! Просим Вас придерживаться определенных правил при комментировании литературных произведений.
Просьба отказаться от дискриминационных высказываний. Мы защищаем право наших читателей свободно выражать свою точку зрения. Вместе с тем мы не терпим агрессии. На сайте запрещено оставлять комментарий, который содержит унизительные высказывания или призывы к насилию по отношению к отдельным лицам или группам людей на основании их расы, этнического происхождения, вероисповедания, недееспособности, пола, возраста, статуса ветерана, касты или сексуальной ориентации. Просьба отказаться от оскорблений, угроз и запугиваний. Просьба отказаться от нецензурной лексики. Просьба вести себя максимально корректно как по отношению к авторам, так и по отношению к другим читателям и их комментариям.
Надеемся на Ваше понимание и благоразумие. С уважением, администратор My-Books.me.
Оставить комментарий
-
Александра15 январь 09:37
Очень интересная книга! Особенно, если любишь психологию и хочешь понимать себя и других. Обязательно послушаю до конца. Спасибо....
Кригер Борис – Гнев
-
Галина25 май 13:02
Очень уважаю Артема Шейнина, книга замечательная, очень мне близкая по духу.Перечитываю уже второй раз, столько пережитого и не...
Мне повезло вернуться - Артем Шейнин
-
Екатерина11 январь 08:05
Доброе утро. Подскажите пожалуйста как сохранять книги, ставить закладки?...
Подонок - Анастасия Леманн