Пчеловодство. Первые шаги к прибыльному хозяйству - Василий Королев
Книгу Пчеловодство. Первые шаги к прибыльному хозяйству - Василий Королев читаем онлайн бесплатно и без регистрации! Читать онлайн вы можете не только на компьютере, но и на андроид (Android), iPhone и iPad. Наслаждайтесь!
199 0 09:39, 25-05-2019Книга Пчеловодство. Первые шаги к прибыльному хозяйству - Василий Королев читать онлайн бесплатно без регистрации

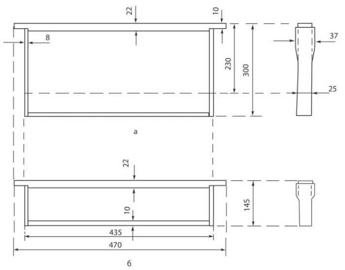
Рис 21. Ульевые рамки:
а – гнездовая, магазинная (полурамка), размеры – в мм

Рис 22. Шкаф для хранения рамок

Рис 23. Дымарь
(к стр. 217)

Рис 24. Стамеска пасечная
(к стр. 218)

Рис 25. Щетки и гусиное перо
(к стр. 218)

Рис 26. Скребки
(к стр. 218)

Рис 27. Ящики переносные
(к стр. 219)

Рис 28. Рабочий ящик пчеловода
(к стр. 219)

Рис 29. Роевни
(к стр. 219)

Рис 30. Решетки разделительные
(к стр. 220)

Рис 31. Пчеловодные
щипцы для рамок (к стр. 221)

Рис 32. Разновысотная опора
(к стр. 221)

Рис 33. Кормушки:
1 – наклонное дно, 2 – корпус, 3 – крышка, 4 – заливное отверстие, 5 – ось заслонки, 6 – заслонка, 7 – перегородка для пчел, 8 – поплавок, 9 – перегородка для сиропа, 10 – кормовая щель, 11 – щель для сиропа, 12 – плечики, 13 – ванночка для корма, 14 – корупус улья; а – надрамочная, в – рамочная, с – внешняя кормушка (к стр. 221)

Рис 33а. Разрез надрамочной кормушки:
1 – перегородка, 2 – глухая перегородка, 3 – крышка из плексигласа,
4 – выходное кормовое отверстие, 5 – дно кормушки, 6 – промежуток 2 мм, 7 – заливное отверстие (к стр. 221)

Рис 34. Удалители: а – пластинчатый, б – лотковый (к стр. 222–223)

Рис 35. Пасечные ножи и вилка: а – нож, б – электрический нож, в – вилка (к стр. 224)

Рис 36. Слева – стол для распечатывания сотов:
1 – медовые рамки, 2 – двухскатная металлическая рама,
3 – распечатываемый сот, 4 – дно, 5 – решетка, 6 – кран для слива меда. Справа – деревянная рама (к стр. 224)

Рис 37. Расположение рамок в медогонках 1, 2 и 3 – вид сверху, в медогонке универсальной (4) – вид сбоку (к стр. 225)

Рис 38. Медогонки: хордиальная, с мотором – (слева), 1 – радиальная, 2 – универсальная.
(к стр. 225)

Рис 39. Фильтры:
а – двухсекционный, б – трехсекционный погружной (к стр. 226)
Прочитали книгу? Предлагаем вам поделится своим впечатлением! Ваш отзыв будет полезен читателям, которые еще только собираются познакомиться с произведением.
Уважаемые читатели, слушатели и просто посетители нашей библиотеки! Просим Вас придерживаться определенных правил при комментировании литературных произведений.
Просьба отказаться от дискриминационных высказываний. Мы защищаем право наших читателей свободно выражать свою точку зрения. Вместе с тем мы не терпим агрессии. На сайте запрещено оставлять комментарий, который содержит унизительные высказывания или призывы к насилию по отношению к отдельным лицам или группам людей на основании их расы, этнического происхождения, вероисповедания, недееспособности, пола, возраста, статуса ветерана, касты или сексуальной ориентации. Просьба отказаться от оскорблений, угроз и запугиваний. Просьба отказаться от нецензурной лексики. Просьба вести себя максимально корректно как по отношению к авторам, так и по отношению к другим читателям и их комментариям.
Надеемся на Ваше понимание и благоразумие. С уважением, администратор My-Books.me.
Оставить комментарий
-
Александра15 январь 09:37
Очень интересная книга! Особенно, если любишь психологию и хочешь понимать себя и других. Обязательно послушаю до конца. Спасибо....
Кригер Борис – Гнев
-
Галина25 май 13:02
Очень уважаю Артема Шейнина, книга замечательная, очень мне близкая по духу.Перечитываю уже второй раз, столько пережитого и не...
Мне повезло вернуться - Артем Шейнин
-
Екатерина11 январь 08:05
Доброе утро. Подскажите пожалуйста как сохранять книги, ставить закладки?...
Подонок - Анастасия Леманн