Легкие танки семейства Т-40. «Красные» разведчики - Илья Мощанский
Книгу Легкие танки семейства Т-40. «Красные» разведчики - Илья Мощанский читаем онлайн бесплатно и без регистрации! Читать онлайн вы можете не только на компьютере, но и на андроид (Android), iPhone и iPad. Наслаждайтесь!
178 0 21:30, 25-05-2019Книга Легкие танки семейства Т-40. «Красные» разведчики - Илья Мощанский читать онлайн бесплатно без регистрации

Схема бронирования легкого неплавающего танка Т-40С.

Фотопортрет конструктора легких танков семейства Т-40 Н.А. Астрова.

Погрузка танков Т-40С на железнодорожные платформы. На переднем плане видна радиофицированная версия подобной боевой машины. Московская область, 109 тд, август 1941 года.
Таким образом, выяснилось, что применение плавающих машин, каким являлся Т-40, было ограниченным, а вот легких танков хронически не хватало. Чтобы технологически упростить машину, конструкторы ликвидировали все водоходное оборудование: гребной винт с карданным приводом (валом), коробку отбора мощности, водяные (водоходные) рули, трюмный насос, теплообменник, водоотбойный щит, компас. По возможности отказались и от радиостанции. Начиная с июля, когда было произведено уже 60 машин в новой комплектации, такие танки выпускались под условной маркой 40С («сухопутный» – однако в документах завода № 37 этот индекс не встречается) с использованием большого задела прежних бронекорпусов с нишей винта. Вопреки сложившемуся мнению вооружение не менялось – пушку ШВАК установили только на модифицированном полигонном Т-40С, единственном уцелевшем танке этого типа, ныне хранящемся в музее бронетанковой техники в Кубинке. Интересно, что такой же инициативной переделке на полигоне подвергли и танк Т-38, который можно увидеть в музее Вооруженных Сил в Москве.

Танки Т-40С на платформе воинского эшелона 109 тд. Окрестности Москвы, август 1941 года.
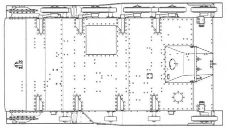
Схема компоновки танка Т-40С соответствовала его предшественнику Т-40 и вследствие амфибийных свойств «прототипа» отличалась от классической расположением двигателя и трансмиссии и предусматривала 5 отделений: трансмиссионное, управления, боевое, моторное и кормовое. Боевое отделение и отделение управления были совмещены и находились в средней части корпуса машины у левого борта. Справа от них располагалось моторное отделение. Трансмиссионное отделение находилось в носовой части корпуса.

Чертежи легкого неплавающего танка Т-40С. Представлен нерадиофицированный вариант с 20-мм пушкой ШВАК/ТНШ. Масштаб 1:35.
В кормовом отделении по бортам корпуса размещались топливные баки. В средней части корпуса на шариковой опоре устанавливалась башня конической формы, смещенная от продольной оси танка к левому борту. Экипаж состоял из механика-водителя и командира танка, одновременно выполнявшего функции наводчика и заряжающего. Совместное расположение членов экипажа облегчало непосредственную связь между ними и их взаимозаменяемость. Посадка и выход экипажа производились через люки, расположенные в крыше отделения управления и башни, закрывавшиеся откидными броневыми крышками на петлях. В днище корпуса имелся аварийный (запасный) люк.
Броневая защита танка Т-40С была противопульная, изготовленная из листов цементированной брони толщиной 5, 9, 13 и 15 мм, установленных под рациональными углами наклона. Соединение броневых листов корпуса и башни производилось с помощью электросварки и частично болтами. В переднем лобовом листе корпуса перед механиком-водителем находился люк, закрывавшийся броневым щитком. Для наблюдения за полем боя и вождения танка в броневом щитке и боковых наклонных листах корпуса, слева и справа от механика-водителя, были сделаны смотровые щели, оборудованные триплексами. Над смотровыми щелями устанавливались броневые козырьки. В лобовом и боковых листах имелись амбразуры для стрельбы из личного оружия, закрывавшиеся броневыми пробками. Вентиляция отделения управления осуществлялась с помощью специального воздухопритока, сделанного в крышке механика-водителя и защищенного броневым прикрытием.

Экипажи танков Т-40С прикрывают свои боевые машины маскировочной сеткой. Московская область, 109 тд, август 1941 года.
В нижнем лобовом листе корпуса имелось отверстие, закрытое броневой крышкой, для заводной рукоятки при пуске двигателя вручную. Съемными были сделаны подбашенный, надмоторный, лобовой и кормовой листы корпуса. Справа в надмоторном листе корпуса находился воздухоприток, закрытый броневым колпаком. В колпаке был сделан люк для обслуживания двигателя, закрытый откидной крышкой на петлях. В надмоторном листе располагался также лючок для заправки радиатора охлаждающей жидкостью. В верхнем кормовом листе корпуса была установлена коробка жалюзи, через которые выходил нагретый воздух от радиатора системы охлаждения двигателя, а также имелись два лючка для доступа к заправочным горловинам топливных баков.

Танки Т-40С погружены на платформы и готовы к отправке на фронт. Московская область, 109 тд, август 1941 года.
В днище корпуса были сделаны лючки: один под двигателем – для слива масла, другой для слива воды из системы охлаждения двигателя и два лючка под топливными баками для слива топлива. Все сливные и заправочные лючки были закрыты броневыми крышками или пробками с резьбой.
Прочитали книгу? Предлагаем вам поделится своим впечатлением! Ваш отзыв будет полезен читателям, которые еще только собираются познакомиться с произведением.
Уважаемые читатели, слушатели и просто посетители нашей библиотеки! Просим Вас придерживаться определенных правил при комментировании литературных произведений.
Просьба отказаться от дискриминационных высказываний. Мы защищаем право наших читателей свободно выражать свою точку зрения. Вместе с тем мы не терпим агрессии. На сайте запрещено оставлять комментарий, который содержит унизительные высказывания или призывы к насилию по отношению к отдельным лицам или группам людей на основании их расы, этнического происхождения, вероисповедания, недееспособности, пола, возраста, статуса ветерана, касты или сексуальной ориентации. Просьба отказаться от оскорблений, угроз и запугиваний. Просьба отказаться от нецензурной лексики. Просьба вести себя максимально корректно как по отношению к авторам, так и по отношению к другим читателям и их комментариям.
Надеемся на Ваше понимание и благоразумие. С уважением, администратор My-Books.me.
Оставить комментарий
-
Александра15 январь 09:37
Очень интересная книга! Особенно, если любишь психологию и хочешь понимать себя и других. Обязательно послушаю до конца. Спасибо....
Кригер Борис – Гнев
-
Галина25 май 13:02
Очень уважаю Артема Шейнина, книга замечательная, очень мне близкая по духу.Перечитываю уже второй раз, столько пережитого и не...
Мне повезло вернуться - Артем Шейнин
-
Екатерина11 январь 08:05
Доброе утро. Подскажите пожалуйста как сохранять книги, ставить закладки?...
Подонок - Анастасия Леманн