Крейсер «Очаков» - Рафаил Мельников
Книгу Крейсер «Очаков» - Рафаил Мельников читаем онлайн бесплатно и без регистрации! Читать онлайн вы можете не только на компьютере, но и на андроид (Android), iPhone и iPad. Наслаждайтесь!
317 0 17:21, 26-05-2019Книга Крейсер «Очаков» - Рафаил Мельников читать онлайн бесплатно без регистрации
Недалеко ушел в обобщении печального опыта тогдашнего судостроения и П. Е. Черниговский, имевший полную возможность сопоставить преимущества высокоорганизованного частного предприятия (во время наблюдения за постройкой в Америке „Варяга”) со всеми бедами казенного судостроения отсталой России (лишь недавно он оставил должность главного корабельного инженера Севастопольского порта). Корень зла в задержках постройки николаевского крейсера он видел отнюдь не в недостатках системы, а в неудачном подборе строителей — сначала И. О. Гайдамовича, „человека хотя и знающего, но болезненного”, а затем В. А. Лютера, назначенного на должность вопреки протестам МТК. „Человек хотя и с большими способностями и большой энергиею”, В. А. Лютер, однако, считался не имеющим большого опыта, так как в корпус корабельных инженеров (после 10 лет службы инженер-механиком — Р. М.) перешел только в 1902 г., имея за плечами кораблестроительную практику лишь в Петербургском порту с июня 1900 г. при постройке броненосца „Орел”, а затем в качестве помощника строителя „Кагула”.
Вряд ли справедлив этот окрашенный кастовой предвзятостью отзыв. Энергия и способности — гарантия быстрого освоения любой смежной профессии, тем более в должности строителя уже спущенного на воду корабля. Претензии к В. А. Лютеру явно неосновательны. Гораздо важнее — замечания об исключительных условиях, в которых протекает судостроение в Николаеве и Севастополе. Удаленность от столицы, где сосредоточены наиболее опытные технические силы, и невнимание членов МТК, вовсе не посещающих эти порты, заставляют черноморских инженеров работать излишне самостоятельно, затрачивая много времени на получение сведений, давно уже имеющихся „на севере”. Из-за этого, — делал не вполне справедливый вывод П. Е. Черниговский — инженеры черноморского флота быстро отстают от своих товарищей, служащих в Петербурге. Тем не менее никаких предложений об исправлении такого порядка, хотя бы, например, о предоставлении черноморцам прав действующего в Петербурге Положения о новом судостроении, объяснения П. Е. Черниговского не содержали. К ним без комментариев присоединялись расписавшиеся на записке Н. Е. Титов, Н. В. Долгоруков, Я. Д. Левицкий и другие члены МТК.
Иными, более глубокими, чем выводы верхов, были мнения самих черноморцев.
Сохранившиеся в архиве объяснения В. И. Киприановича и А. А. Баженова охватывали все стороны прошедшей перед нами картины постройки, и восстановления „Очакова”. Вскрыты были и фатальная необеспеченность проектной документацией уже строившегося корабля, и отсутствие централизации в разработке чертежей, отчего однотипные корабли оказывались похожими только внешне. Отмечались и поглощавшая массу времени многоступенчатость рассмотрения чертежей, и создававшее хаос отсутствие общих норм и правил проектирования, и зачаточное состояние стандартизации и унификации. Постоянные задержки вызывали донельзя бюрократическая процедура оформления любых заказов (оформление покупки водопроводного крана могло отнимать недели, а то и месяцы), раздробление заказов между разными поставщиками (пример — заказы динамомашин и рулевого устройства), неуемное стремление портовых контор к дешевизне заказа в ущерб его качеству и особенно срокам выполнения (множество избранных таким путем недобросовестных контрагентов „страшно задерживают” постройку, — подчеркивал А. А. Баженов).
Оба инженера хорошо сознавали эти общие беды сложившейся в кораблестроении системы. Постоянно перегруженные писанием бумаг (вспомним 4000 отношений из-под пера Н. И. Янковского!), задавленные гнетом многоступенчатой канцелярской субординации и бюрократической обрядностью заказов, инженеры не имели никаких возможностей для всестороннего развития „своих практических познаний и способностей”. Крайне полезной была бы организация творческих объединений инженеров, постоянная информация их о деятельности МТК, издание специального журнала и систематическое изучение мирового опыта судостроения путем периодических заграничных командировок.
Осуществление всех этих мер и решительное устранение названных недостатков могли бы, по мнению В. И. Киприановича и А. А. Баженова, существенно ускорить постройку отечественных кораблей и поднять качество работ. [83] Увы, осуществление большинства предложенных мер означало бы серьезную деформацию порядков самодержавно-бюрократического режима с его культом мелочной отчетности и жесткой неповоротливой централизацией. Ничего не в силах был сделать, да, вероятнее всего, и не представлял как за это взяться, и сам А. А. Бирилев, первым занявший вновь учрежденную должность морского министра. Призванный реформировать министерство, он, как верный слуга царизма, подобно Г. П. Чухнину, направил свои основные усилия в иную сторону. Достаточно напомнить о его репрессиях против офицерского состава и матросов отряда контр-адмирала Н. И. Небогатова: все они, даже раненые и героически сражавшиеся, были без следствия и даже до возвращения на родину лишены воинских званий, исключены из службы и отданы под суд за то, что составляли экипажи кораблей, командиры которых сдали их в плен. Довольно конвульсивной была его деятельность в области кораблестроения. Не сумев организовать в министерстве разработку единой кораблестроительной программы и уже тем самым предрешив провал первых планов восстановления флота [84], Бирилев не проявил государственной мудрости и при рассмотрении причин задержки достройки черноморских крейсеров и броненосцев.

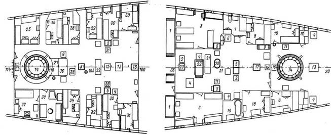
Расположение некоторых помещений, погребов и шахт подачи боеприпасов на крейсере „Память Меркурия”: на жилой палубе в р-не шп. 20–36 (справа) и в районе шп, 100–114 (слева)
1 — рундук для больших чемоданов; 2 — люк ручной подачи 75-мм патронов; 3 — лазарет; 4 — люк в кладовую запасов; 5 — шахта элеватора подачи 152-мм боеприпасов; 6 — люк в винный погреб; 7 — каюта фельдшера; 8 — каюта кондуктора; 9 — рундук для малых чемоданов; 10 — каюта боцмана; 11 — люк схода и ручной подачи 152-мм патронов; 12 — каюта унтер-офицера; 13 — люк в помещение динамомашин; 14 — подачная труба башни 152-мм орудий; 15 — люк в карцер; 16 — люк схода и ручной подачи мелких патронов;' 17 — шахта элеваторов подачи 47-мм патронов; 18 — аптека; 19 — ванная и санузел; 20 — броневая труба защиты кабелей и приводов из боевой рубки; 21 — люк для передачи раненых; 22 — трап на верхнюю палубу; 23 — шахта элеватора подачи 75-мм патронов; 24 — люк в подбашенное отделение; 25 — каюта трюмного механика; 26 — каюта минного механика; 27 — фотолаборатория; 28 — каюта младшего артиллерийского офицера; 29 — каюта младшего врача; 30 — спальня и- кабинет старшего механика; 31 — кагота священника; 32 — каюта офицера; 33 — люк в погреб 152-мм боеприпасов; 34 — каюта младшего минера; 35 — люк в погреб 75-мм патронов; 36 — помещение хронометров; 37 — кабинет и спальня старшего офицера.
Вопрос о задержках возник снова по докладу Н. И. Скрыдлова морскому министру 14 октября 1906 г. Ход достройки этих кораблей (о разгроме „Очакова” карателями стыдливо умалчивалось) „нельзя назвать успешным”, — писал Н. И. Скрыдлов. — И если порт, уже пять лет продолжая строить „Кагул”, обещает зависящие от него работы (как и Николаевский завод — механизмы) завершить ко второй поло вине ноября, то в вопросах артиллерийского и минного вооружения все еще нет ясности. Сроки получения орудий, неоднократно откладывавшиеся, опять срываются, состав вооружения МТК еще не определен полностью, в связи с чем отложена и прокладка кабелей системы управления артиллерийским огнем. Нет еще паровых катеров, не готовы к сдаче, хотя уже и установлены на корабле, динамомашины. Задержками грозит и решение МТК об установке на корабле мощной радиостанции с бронированной рубкой для нее.
Прочитали книгу? Предлагаем вам поделится своим впечатлением! Ваш отзыв будет полезен читателям, которые еще только собираются познакомиться с произведением.
Уважаемые читатели, слушатели и просто посетители нашей библиотеки! Просим Вас придерживаться определенных правил при комментировании литературных произведений.
Просьба отказаться от дискриминационных высказываний. Мы защищаем право наших читателей свободно выражать свою точку зрения. Вместе с тем мы не терпим агрессии. На сайте запрещено оставлять комментарий, который содержит унизительные высказывания или призывы к насилию по отношению к отдельным лицам или группам людей на основании их расы, этнического происхождения, вероисповедания, недееспособности, пола, возраста, статуса ветерана, касты или сексуальной ориентации. Просьба отказаться от оскорблений, угроз и запугиваний. Просьба отказаться от нецензурной лексики. Просьба вести себя максимально корректно как по отношению к авторам, так и по отношению к другим читателям и их комментариям.
Надеемся на Ваше понимание и благоразумие. С уважением, администратор My-Books.me.
Оставить комментарий
-
Александра15 январь 09:37
Очень интересная книга! Особенно, если любишь психологию и хочешь понимать себя и других. Обязательно послушаю до конца. Спасибо....
Кригер Борис – Гнев
-
Галина25 май 13:02
Очень уважаю Артема Шейнина, книга замечательная, очень мне близкая по духу.Перечитываю уже второй раз, столько пережитого и не...
Мне повезло вернуться - Артем Шейнин
-
Екатерина11 январь 08:05
Доброе утро. Подскажите пожалуйста как сохранять книги, ставить закладки?...
Подонок - Анастасия Леманн