Линкоры Британской империи. Часть 5. На рубеже столетий - Оскар Паркс
Книгу Линкоры Британской империи. Часть 5. На рубеже столетий - Оскар Паркс читаем онлайн бесплатно и без регистрации! Читать онлайн вы можете не только на компьютере, но и на андроид (Android), iPhone и iPad. Наслаждайтесь!
201 0 11:33, 25-05-2019Книга Линкоры Британской империи. Часть 5. На рубеже столетий - Оскар Паркс читать онлайн бесплатно без регистрации
Место постройки Заложен Спущен на воду Введён к строй Стоимость, ф. ст.
«Формидэбл» Портсмут 21 марта 1898 17 ноября 1898 сентябрь 1901 1 022 745 (орудия 74500)
«Иррезистэбл» Чатем 11 апреля 1898 15 декабря 1898 февраль 1902 1 048 136 (орудия 74500)
«Имплекэбл» «Виккерс» 13 июля 1898 11 марта 1899 сентябрь 1901 989 116 (орудия 74500)
Размерения, м 121.9 (131.6 полная) х 22.9 х 7,62/8.18
Водоизмещение, т в нормальном грузу: 15000, («Имплекэбл» – 14480. в полном грузу 15805)
Вооружение 4 12740 (80 выстрелов на ствол) 12 6745 (200 выстрелов на ствол) 16 76-мм (12-фунтовых. 300 выстрелов на ствол) 2 76-мм десантных 6 47-мм (3-фунтовых. 500 выстрелов на ствол), 2 пулемёта. 4 457-мм подводных торпедных аппарата (полный вес артиллерии с поворотными столами и щитами 1730 т)
Броня, мм пояс в середине 229 КЦ. в носу 76. в корме 38. траверзы 305-254-203, барбеты 305-152. башни 254-203, казематы 152. боевые рубки 356 и 76. броневой колодец связи 203-76, палубы: 64-51 кубрик. 51 нижняя (скос 76). 25 средняя, (вес брони 4335 т)
Механизмы
Машины и котлы:
«Формидэбл» – «Эрл»;
«Имплекэбл» – «Лэрдз»;
«Иррезистэбл» – «Моделей»;
два комплекта трёхцилиндровых тройного расширения. диаметры цилиндров (мм): высокого давления 1410. среднего 1920. низкого 2743: ход поршня 1295 мм. мощность 15000 л.с., скорость хода 18 уз (109 об/мин). 20 котлов Бельвиля с экномайзерами. поверхность нагрева 3437 м"
Запас топлива, т 900/2000 (соответствующая дальность действия 3000/8000 миль 10-узловым ходом при давлении 21.1 атм.).
Экипаж, чел. 780. в качестве флагманского 810 («Имплекэбл» в 1917: 710).
Хотя и бывший в основе своей «Маджестиком», «Формидэбл» гораздо точнее следовало охарактеризовать как модифицированный «Канопус». На момент постройки он являлся самым сильным в мире линкором. Согласно расчётам при проектировании, вес корпуса равнялся 5650 т (как и у «Маджестика»), но тщательная проверка всех статей нагрузки позволила срезать 40 т и впервые этот расчётный вес не был превышен при постройке – огромный шаг вперёд на фоне прежней практики. На самом деле водоизмещение в грузу не превышало 14480 т, а в полном грузу – 15805 т, т. е. на 805 т больше расчётной нормальной нагрузки.
На этих кораблях применили новую конструкцию форштевня: от скоса к ватерлинии отказались, а 34-тонный таран литой стали вдавался глубоко внутрь корпуса и тщательно перевязывался с его набором, в то время как листы обшивки врезались в пазы на форштевне, имевшие прямую, а не лекальную, как прежде, форму. Подобное решение позволяло существенно усилить подкрепление тарана и было впоследствии заимствовано во флотах Германии и Франции.
Вооружение
12" орудие имело относительную длину ствола 40 калибров, весило 50 т и выбрасывало 386-кг снаряд с начальной скоростью 796 м/с, пробивая плиту в 305 мм (12") с 4300 м (сравнительно с 3100 м прежней модели). Заряжание производилось в пределах всего диапазона углов горизонтального и вертикального наведения. Конструкция установки примечательна ещё и тем, что шахта подачи боезапаса выходила в «снарядный отсек» [shell chamber – по существу, перегрузочное отделение. – Ред.], спроектированный таким образом, что он являлся пламяне- проницаемым для низлежащей шахты подачи и погребов боезапаса со стороны расположенного выше боевого отделения при возможном пожаре в верхней части установки. Вне прикрытия бортовой бронёй (выше средней палубы) толщина плит барбета составляла 305 мм, ниже – 152 мм. Боевое отделение бронировалось плитами в 254 и 203 мм. Казематы и на средней, и не верхней палубе защищались 152-мм бронёй, концевые 6" орудия выносились за обвод палубы на спонсоны, для обеспечения им возможности ведения огня прямо по носу и корме. Из числа 76-мм орудий восемь располагалось в центральной батарее по четыре на борт, ещё по четыре было установлено в носу и корме под верхней палубой (они вели огонь через порты в бортовой обшивке). Шесть 47-мм пушек были водружены на боевые марсы. От торпедной трубы в корме отказались и корабли получили по четыре подводных траверзных аппарата – по два на борт, размещённых у оснований барбетов. Помимо этого, торпедное вооружение (калибра 356 мм) предусматривалось для трёх штатных судовых паровых катеров.
Броневая защита
И главный пояс по ватерлинии, и простиравшийся над ним верхний пояс состояли из плит крупповской цементированной брони в 229 мм. Пояс имел длину 66,45 м и высоту 4,57 м (из них 1,45 м ниже ватерлинии). Бортовая защита перекрывалась поперечными траверзами скошенной от борта к барбетам формы, имевшими толщину 229 мм между средней и нижней палубами и 254 мм под нижней палубой. В носу борт бронировался плитами в 76 мм, которые простирались до форштевня, а в корме – толщиной 38 мм, доходившими до ахтерштевня. Высота защиты в носу и корме составляла около 2,4 м. В сущности, подобный уровень бронирования оконечностей подразумевал надёжную защиту разве что на случай столкновения, хотя на первый взгляд производил впечатление полной защиты ватерлинии, фактически появившейся только в более поздних проектах.
Горизонтальная защита воспроизводила «Канопус» со средней палубой толщиной 25 мм, перекрывавшей цитадель, и нижней палубой в 51 мм (в плоской части, на скосах 76 мм). За пределами цитадели имелась подводная броневая палуба толщиной 51 мм в носу и 64 мм- в корме, с обычным подразделением помещений на мелкие отсеки – в этом смысле не произошло никакого отхода от уже сложившейся практики, на что могли пойти в связи с введением тонкого бронирования оконечностей: единственное, на что эта инициатива оказала влияние, так это на уменьшение толщины барбетов с 356 до 305 мм.

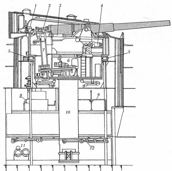
«Формидэбл». Установка 12" орудий, продольный разрез:
1 – прибойник; 2-зарядник; 3 – гидроцилиндр компрессора; 4 – гидропривод вертикального наведения; 5 – ролики погона; 6 – снарядный отсек (перегрузочное отделение); 7 – направляющие зарядника; 8 – гидропривод горизонтального наведения; 9 – ручной привод горизонтального наведения; 10 – шахта подачи боезапаса; 11 – вспомогательные механизмы; 12 – направляющие для горизонтального перемещения боезапаса.

«Формидэбл». Схема распределения броневой защиты
Машинная установка и скорость хода
Сравнительно с «Маджестиком», применение водотрубных котлов позволило увеличить мощность с 12000 л.с. при форсированном дутье до 15000 с натуральной тягой, что выразилось в увеличении скорости с 17 до 18 уз – считалось, что в реальных условиях разница в ходе достигнет двух узлов. При 30-часовом испытании с 4/5 полной мощности все три одноклассника преодолели отметку 11600 л.с., показав 16,8 – 17,5 уз и достигли на 8-часовом пробеге на полную мощность (порядка 15000 л.с.) значения в 18,2 уз.
Прочитали книгу? Предлагаем вам поделится своим впечатлением! Ваш отзыв будет полезен читателям, которые еще только собираются познакомиться с произведением.
Уважаемые читатели, слушатели и просто посетители нашей библиотеки! Просим Вас придерживаться определенных правил при комментировании литературных произведений.
Просьба отказаться от дискриминационных высказываний. Мы защищаем право наших читателей свободно выражать свою точку зрения. Вместе с тем мы не терпим агрессии. На сайте запрещено оставлять комментарий, который содержит унизительные высказывания или призывы к насилию по отношению к отдельным лицам или группам людей на основании их расы, этнического происхождения, вероисповедания, недееспособности, пола, возраста, статуса ветерана, касты или сексуальной ориентации. Просьба отказаться от оскорблений, угроз и запугиваний. Просьба отказаться от нецензурной лексики. Просьба вести себя максимально корректно как по отношению к авторам, так и по отношению к другим читателям и их комментариям.
Надеемся на Ваше понимание и благоразумие. С уважением, администратор My-Books.me.
Оставить комментарий
-
Александра15 январь 09:37
Очень интересная книга! Особенно, если любишь психологию и хочешь понимать себя и других. Обязательно послушаю до конца. Спасибо....
Кригер Борис – Гнев
-
Галина25 май 13:02
Очень уважаю Артема Шейнина, книга замечательная, очень мне близкая по духу.Перечитываю уже второй раз, столько пережитого и не...
Мне повезло вернуться - Артем Шейнин
-
Екатерина11 январь 08:05
Доброе утро. Подскажите пожалуйста как сохранять книги, ставить закладки?...
Подонок - Анастасия Леманн