Легкие крейсера Италии. Часть I. 1932-1945 гг. Крейсера типа “Бартоломео Коллеони” и “Луиджи Кадорна” - Сергей Трубицын
Книгу Легкие крейсера Италии. Часть I. 1932-1945 гг. Крейсера типа “Бартоломео Коллеони” и “Луиджи Кадорна” - Сергей Трубицын читаем онлайн бесплатно и без регистрации! Читать онлайн вы можете не только на компьютере, но и на андроид (Android), iPhone и iPad. Наслаждайтесь!
148 0 16:58, 26-05-2019Книга Легкие крейсера Италии. Часть I. 1932-1945 гг. Крейсера типа “Бартоломео Коллеони” и “Луиджи Кадорна” - Сергей Трубицын читать онлайн бесплатно без регистрации
1) Улучшить остойчивость.
2) Усилить бронирование и прочность корпуса.
3) Изменить форму надстройки.
4) Улучшить расположение авиационного вооружения.
5) По-другому расположить универсальную артиллерию.
Эта серия получила название "Коидотьери” типа "В’" или крейсера типа “Луиджи Кадорна". Оба корабля назвали в честь генералов – участников первой мировой войны. Корабли зачислили в состав флота королевским декретом № 1500 от 19 июля 1927 г. Каждый их них обошелся налогоплательщикам в 61 500 000 лир.
Тактико-технические данные
Водоизмещение. "Альберто дм Джуссано’'. 5280 т (стандартное). 7860 т (в полном грузу без мин). 7972 т (в полном грузу с минами на борту). "Альберико да Барбиано” 5328 т (стандартное), 7908 т (в полном грузу без мин), 8011 т (в полном грузу с минами на борту). "Бартоломео Коллеонн" 5184 т (стандартное), 7670 т (в полном грузу без мин), 7782 т (в полном грузу с минами на борту). "Джиованн Делле Банде Нере’' 5598 т (стандартное), 8040 т (в полном грузу без мин), 8152 т (в полном грузу с минами на борту). (По другим данным, водоизмещение крейсеров было следующим: 5150 (стандартное), 6954 т (боевое). (Whitley "Kreuzer im Zweiten Weltkrieg”, S. 150).
Размерения. Длина 169,32 м (наибольшая), 160 м (между перпендикулярами), 167,2 м (по ватерлинии). ширина 15.59 м. осадка 5.11 м (средняя), осадка при полном водоизмещении: “Ди Джуссано" – 5.84 м (нос), 5.72 (корма); "Да Барбиано” и “Коллеони" – 5.25 м (нос) 5.41 (корма); "Банде Нере" – 5,87 м (нос). 5,92 м (корма).
Итальянские проектировщики выбрали смешанную схему набора. Продольный набор использовался в районе двойного дна. до платформ. а поперечный набор от платформы до главной палубы. Часть шпангоутов была усилена (обычно каждый третий или четвертый). Корпус был максимально облегчен, что неблагоприятно сказывалось на его прочности. Чтобы как-то компенсировать этот недостаток, в корпусе были две продольные переборки, от двойного дна до палубы платформы, от 9 шпангоута в носу, до 173 шпангоута в корме. 15 поперечных переборок разделили корпус на 16 водонепроницаемых отсеков. Все переборочные дверн от днища до третьей палубы были водонепроницаемые.

Легкий крейсер “Бартоломео Коллеони”. 1932 г. (Теоретический чертеж корпуса)
Крейсера типа "Кондотьери” типа "А” были красивыми двухтрубными кораблями, с хорошо развитым полубаком. Он протягивался примерно до 1/3 длины корпуса. Форма носа была изогнутой, а в подводной части имелся небольшой таран. На палубе полубака находились две башни главного калибра. К башне № 2 были прикреплены параваны. Затем шли носовые надстройки, которые протягивались до конца первой трубы. Итальянские конструкторы применили оригинальное решение. В корму от башни № 2 в надстройке находился ангар для двух корабельных гидросамолетов. В него можно было попасть через две большие двери по бортам. Гидросамолеты к катапульте перевозились на тележке по рельсам. Над ангаром находились бронированная боевая рубка, визирные посты для универсального калибра, шифровальная каюта, радиорубка и прочие помещения.

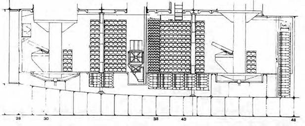
Легкий крейсер "Бартоломео Коллеони" 1932 г. (Поперечные сечения)

Легкий крейсер “Бартоломео Коллеони". 1932 г. (Наружный вид, вид сверху и продольный разрез)

Легкий крейсер “Бартоломео Коллеони". (Схема расположения погребов кормовых башен главного калибра)
Подрисуночные подписи к чертежу продольного разреза на стр. 6-7.
1 Помещение для кормового якоря. 2. Кладовая. 3. 5‹сде кладовую, 4 Ванная и гальюн офицеров. 5, Кладовая Фицерских чемоданов. 6 Румпельное отделение 7. Офицерские каюты 8 Погреб и кладовые. 9. Ахтерпик 10. Рулепривод. I 1. Кормовой шпиль. 12. Помещение рулевой машины 13 Балластные цистерны 14. Топливные цистерны :сле апреля 1936 г. цистерна котельной воды) 15. Кормо- ;;насосное отделение 16,24 Подбашенное отделение. ? Кормовой погреб боезапаса. 18. Каюта финансиста. 19. элеваторы подачи боезапаса. 20 Лебедка подачи. 21. Рефрижераторная камера 22. Топливо. 23. Помещение караула. Основа 5-м дальномера 26 Кормовой пост управления кораблем 27 Канцелярия артиллерийской боевой части ( с 1933 радиорубка). 28 Канцелярия адмирала (после Ыг канцелярия командира дивизиона). 29 Кладовая. 30. каюта для совещаний.31. Кубрик. 32. Вход в главную радиорубку 33 Электростанция 34. Кормовое машинное отделение 35 Основание турбин, конденсатора и зубчатой задачи 36. Масляные цистерны. 37 Ремонтная палуба. 38. Световые решетки. 39 Световой люк машинного отделения. 40 Бронированная крышка светового люка машинного отделения 41. Кран 42 Шлюпочная палуба. 43 Каюта командира. 44. Офицерский камбуз. 45. Кладовая электромеханической части. 46 дымоход котла № 6. 47. Дымоход котла №5. 48. Труба воздухозаборника кормового котельного деления (котлы № 5 и 6) 49. Вентилятор кормового котельного отделения. 50. Крышка и люк в машинное отделение. 51. Кормовое котельное отделение. 52. Мастерская. 53. Вспомогательное котельное отделение. 54. Проход в корабельную электростанцию. 55. Барбеты 100-мм орудий. 56. Платформа 100-мм орудий 57. Бронированные крышки световых люков машинного отделения. 58 Носовое машинное отделение. 59. Тренажер для заряжания. 60. Кладовая электромеханической боевой части. 61 Арсенал стрелкового оружия. 62. Проход в средний погреб боезапаса. 63. Средний погреб боезапаса 100-мм орудий. 64 Барбет 100-мм орудия 65. Дымоход котла № 4. 66. Дымоход котла № 3. 67. Воздуховод в среднее котельное отделение. 68 Центральное котельное отделение. 69. Дымоход котла № 2. 70. Дымоход котла № 1. 71. Воздуховод в носовое котельное отделение. 72. Носовое котельного отделение. 73 КДП № 1. 74 3-м дальномер. 75. Штурманская рубка. 76. Рулевая рубка. 77 Каюта командира. 78. Гальюн и умывальники. 79. КДП № 2. 80. Шифровальная рубка. 81 Офицерская библиотека (с апреля 1939 г. радиорубка для связи с самолетами). 82. Канцелярия артиллерийской боевой части. 83 Боевая рубка 84. Ангар на два самолета 85. Двери ангара 86. Шкиперская (парусная) кладовая. 87. Кладовая одежды и белья, 88. Аккумуляторная. 89. Каюта почтальона. 90 Помещение ЦАП- 2T.C. 91. Гирокомпас. 92 Погреб для боевых зарядных отделений торпед. 93. Башня № 2. 94. Носовой погреб боезапаса. 95. Центральный артиллерийский пост 96. Проход в носовой погреб. 97. Башня № 1. 98 Кладовая для хранения масла. 99. Носовое насосное отделение. 100. Топливо для катеров. 101. Проход в насосное отделение. 102 Резервная цистерна котельной воды. 103. Шпиль, 104 Кладовая лакокрасочных материалов. 105. Кубрик, 106, Кладовая провизии (муки). 107. Эхолот "Spalazzi" 108. Винная кладовая. 109 Цепной ящик. 110. Проводка к цепному ящику. 111. Топливопровод авиационного топлива. 112. Гальюн экипажа 113. Душевые экипажа. 114. Чемоданы старшин. 115. Цистерна авиационного топлива. 116. Форпик 117 Проход в форпик.
Прочитали книгу? Предлагаем вам поделится своим впечатлением! Ваш отзыв будет полезен читателям, которые еще только собираются познакомиться с произведением.
Уважаемые читатели, слушатели и просто посетители нашей библиотеки! Просим Вас придерживаться определенных правил при комментировании литературных произведений.
Просьба отказаться от дискриминационных высказываний. Мы защищаем право наших читателей свободно выражать свою точку зрения. Вместе с тем мы не терпим агрессии. На сайте запрещено оставлять комментарий, который содержит унизительные высказывания или призывы к насилию по отношению к отдельным лицам или группам людей на основании их расы, этнического происхождения, вероисповедания, недееспособности, пола, возраста, статуса ветерана, касты или сексуальной ориентации. Просьба отказаться от оскорблений, угроз и запугиваний. Просьба отказаться от нецензурной лексики. Просьба вести себя максимально корректно как по отношению к авторам, так и по отношению к другим читателям и их комментариям.
Надеемся на Ваше понимание и благоразумие. С уважением, администратор My-Books.me.
Оставить комментарий
-
Александра15 январь 09:37
Очень интересная книга! Особенно, если любишь психологию и хочешь понимать себя и других. Обязательно послушаю до конца. Спасибо....
Кригер Борис – Гнев
-
Галина25 май 13:02
Очень уважаю Артема Шейнина, книга замечательная, очень мне близкая по духу.Перечитываю уже второй раз, столько пережитого и не...
Мне повезло вернуться - Артем Шейнин
-
Екатерина11 январь 08:05
Доброе утро. Подскажите пожалуйста как сохранять книги, ставить закладки?...
Подонок - Анастасия Леманн