Бронетранспортеры Вермахта - Михаил Барятинский
Книгу Бронетранспортеры Вермахта - Михаил Барятинский читаем онлайн бесплатно и без регистрации! Читать онлайн вы можете не только на компьютере, но и на андроид (Android), iPhone и iPad. Наслаждайтесь!
171 0 14:31, 26-05-2019Книга Бронетранспортеры Вермахта - Михаил Барятинский читать онлайн бесплатно без регистрации
На этих же предприятиях строилась и машина командиров взводов и батарей штурмовых орудий— leichter gepanzerter Beobachtungskraftwagen Sd.Kfz.253. Она также имела полностью закрытый корпус, правда, несколько другой формы. В кормовом листе была предусмотрена посадочная дверь, а в горизонтальной крыше корпуса—люк. Кроме того, в передней части крыши располагался круглый люк для наблюдения за местностью, в крышке которого имелся лючок для размещения стереотрубы. На машине устанавливались радиостанции F.Sp.H и Fu 7. Боевая масса составляла 5,73 т, экипаж—3 человека, габариты 4700x1950x1800 мм. С июня 1940 по сентябрь 1941 года было изготовлено 285 машин этого типа.

Бронетранспортер для перевозки боеприпасов Sd.Kfz.252

Sd.Kfz.252 (вид сверху)

Sd.Kfz.253 (вид сверху)

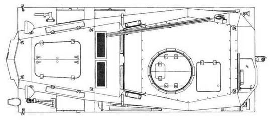
Машина командиров взводов и батарей штурмовой артиллерии Sd.Kfz.253
Производство легких бронетранспортеров
| Год | Sd.Kfz.252 | Sd. Kfz.253 | Sd. Kfz.250 |
| 1940 | 54 | 85 | — |
| 1941 | 359 | 200 | 389 |
| 1942 | — | — | 1374 |
| 1943 | — | — | 2895 |
| 1944 | — | — | 1761 |
| 1945 | — | — | 269 |
| Всего | 413 | 285 | 6628 |
Так как производство Sd.Kfz.252 и Sd.Kfz.253 началось раньше Sd.Kfz.250, то и в войска они поступили первыми. На 1 сентября 1939 года в штат батареи штурмовых орудий входили четыре Sd.Kfz.253 и три Sd.Kfz.252. Их боевое применение ограничилось Балканской кампанией и начальным периодом войны с СССР. К тому времени в качестве командирских машин стали использовать штурмовые орудия StuG III, а перевозчики боеприпасов изготавливать на танковых шасси. Кроме того, производство двух специальных машин на том же шасси, что и Sd.Kfz.250, но с другими корпусами посчитали нецелесообразным.
Серийное производство бронетранспортера, получившего обозначение Sd.Kfz.250, началось в июне 1941 года, когда была выпущена первая партия из 39 машин. С октября 1943 года приступили к выпуску модернизированной модели, так называемой neue Ausfuhrung, отличавшейся упрощенной конструкцией корпуса. Серийное производство Sd.Kfz.250 осуществлялось на заводах Biissing-NAG, Weserhutte, Wumag, Wegmann, Ritscher и Deutsche Werke с июня 1941 no 1945 год в двух вариантах: так называемом старом (Alt) и новом (Neu).

Sd.Kfz.250/1 Alt

Вид спереди

Вид сзади
Базовая серийная модификация бронетранспортера получила обозначение Sd.Kfz.250/1. С точки зрения компоновки бронетранспортер состоял из моторного отделения и находившегося за ним отделения управления, совмещенного с боевым. В последних размещался экипаж в составе водителя и командира машины, перевозимые пехотинцы или вооружение.
Корпус был сварен из прямых катаных броневых листов, расположенных под большими углами наклона. В качестве элементов жесткости использовались уголки и балки таврового профиля. Толщина бортовых, лобовых и кормовых листов не превышала 14,5 мм. Крыша и днище корпуса имели толщину 8 мм. Корпус устанавливался на раму шасси, которая выполнялась из стальных коробчатых балок, сваренных из стальных уголков и усиленных поперечинами. У варианта пей корпус отличался упрощенной конструкцией (9 частей вместо 19) и по внешнему виду был близок к корпусу бронетранспортера Sd.Kfz.251.
В передней части корпуса размещалось моторное отделение, где были смонтированы двигатель и топливный бак. За противопожарной перегородкой находились места водителя и командира бронетранспортера. В распоряжении водителя имелись приборы контроля работы двигателя (датчики температуры, давления масла, тахометр, указатель количества топлива), спидометр и контрольные индикаторы электрооборудования. Управлялась машина с помощью автомобильного руля и педалей сцепления, тормоза и акселератора. Справа от сиденья водителя находился рычаг переключения скоростей КП и рычаг ручного тормоза.

Бронетранспортер Sd.Kfz.253 из 5-й батареи 73-го моторизованного артиллерийского полка 1-й танковой дивизии. Восточный фронт, 1941 год

Бронетранспортер Sd.Kfz.250/1 ведет бой на окраине русской деревни. Восточный фронт, 1943 год
По обе стороны боевого отделения устанавливались скамьи пехотинцев-десантников. Первоначально они были обтянуты дерматином, позже его заменили простым брезентом, закрепленным на каркасе из стальных трубок. Устанавливались также и деревянные скамейки. На бортах имелись держатели для крепления внутри машины вооружения десанта, состоявшего из четырех человек, — 7,92-мм карабинов 98К и 9-мм пистолетов-пулеметов МР38 и МР40.
Прочитали книгу? Предлагаем вам поделится своим впечатлением! Ваш отзыв будет полезен читателям, которые еще только собираются познакомиться с произведением.
Уважаемые читатели, слушатели и просто посетители нашей библиотеки! Просим Вас придерживаться определенных правил при комментировании литературных произведений.
Просьба отказаться от дискриминационных высказываний. Мы защищаем право наших читателей свободно выражать свою точку зрения. Вместе с тем мы не терпим агрессии. На сайте запрещено оставлять комментарий, который содержит унизительные высказывания или призывы к насилию по отношению к отдельным лицам или группам людей на основании их расы, этнического происхождения, вероисповедания, недееспособности, пола, возраста, статуса ветерана, касты или сексуальной ориентации. Просьба отказаться от оскорблений, угроз и запугиваний. Просьба отказаться от нецензурной лексики. Просьба вести себя максимально корректно как по отношению к авторам, так и по отношению к другим читателям и их комментариям.
Надеемся на Ваше понимание и благоразумие. С уважением, администратор My-Books.me.
Оставить комментарий
-
Александра15 январь 09:37
Очень интересная книга! Особенно, если любишь психологию и хочешь понимать себя и других. Обязательно послушаю до конца. Спасибо....
Кригер Борис – Гнев
-
Галина25 май 13:02
Очень уважаю Артема Шейнина, книга замечательная, очень мне близкая по духу.Перечитываю уже второй раз, столько пережитого и не...
Мне повезло вернуться - Артем Шейнин
-
Екатерина11 январь 08:05
Доброе утро. Подскажите пожалуйста как сохранять книги, ставить закладки?...
Подонок - Анастасия Леманн