Германские субмарины Тип XVII Крупным планом - Сергей В. Иванов
Книгу Германские субмарины Тип XVII Крупным планом - Сергей В. Иванов читаем онлайн бесплатно и без регистрации! Читать онлайн вы можете не только на компьютере, но и на андроид (Android), iPhone и iPad. Наслаждайтесь!
148 0 17:45, 25-05-2019Книга Германские субмарины Тип XVII Крупным планом - Сергей В. Иванов читать онлайн бесплатно без регистрации
Затем парогазовая смесь поступала на турбину. На подлодках верфи Блом и Фосс была установлена одновальная многоступенчатая турбина производства турбинной фабрики Брюкнер, Капис и Ко (БКС) из Дрездена. На подлодке WK 202 была установлена 4- х ступеначатая турбина с шестерней Кертиса фирмы Крупп-Гсрмания Верфт. Коэффициент полезною действия 14-ступенчатой БКС-турбины был 77%, что было па 14% больше КПД турбины фирмы Крупп-Германия Верфт. Кроме того, она быстрее выходила на полную нагрузку (33 секунды против I минуты).

Ротор турбины мощностью 2500лс. фирмы Брюкнер, Кание и Ко.

Чертёж турбины фирмы Брюкнер, Кание и Ко в разрезе.

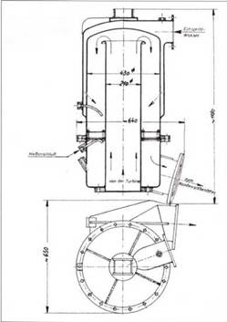
Вид на кормовой отсек подлодки U 1409 с демонтированной турбинной установкой. Справа корпус турбины мощностью 2500.л.с., далее редуктор турбины а планетарный редуктор, над ними па потолке механизм маслорадиатора.
Обе турбины имели выходную мощность 2500 л.с. при 14000 об/мин.
Турбина фирмы Крупп-Германия Верфт весила 1200 кг.
Данные БКС-турбины:
Статор:
Первая крыльчатка 104 лопатки размером 17 мм
Последняя крыльчатка 112 лопаток размером 37 мм
Ротор (максимальный диаметр 210 мм):
Первая крыльчатка 104 лопатки размером 19 мм
Последняя крыльчатка 99 лопаток размером 39 мм
Высокое число оборотов турбины дважды снижалось по пути в винту. Сначала это был турбинный редуктор фирмы Канис-Родер с соотношением 3,85:1 и затем – планетарный редуктор фирмы Штокихт с соотношением 6.54:1.
Прибор блокировки воды должен был с помощью сальника герметизировать турбину от излишков воды. Она охлаждалась, очищалась и вновь использовалась в камере сгорания. Цен тробежный насос фирмы Кляйн-Шанцпин мощностью 60 л.с. имел мощность 18-20 м³ в час. Он приводился в действие электродвигателем AEG-AWV 85 мощностью 2,7 квт при 1000 об/мин и напряжении 110 в или 8.8 квт при 2000 об/мин и напряжением 320 в. Позднее было предусмотрено использование ручного вспомогательного насоса для этих целей.

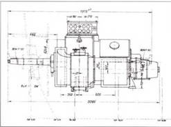
Оригинальный чертёж турбинной установки с редуктором подлодки WK 202.

Чертеж планетарного редуктора в разрезе.

Планетарный редуктор со снятой крышкой.

Размерный эскиз откачивающего насоса тина XVII.

Размерный эскиз насоса для откачки конденсата.

Чертёж конденсатора типа XVII в разрезе.
Конденсатор устанавливался на корпусе турбины, в нем собирался отработанный водяной нар выходящий из турбины. Температура на выходе опускалась до 95о С и вода откачивалась насосом и затем охлаждалась до 35о С и возвращалась по трубопроводу как чистая вода для камеры сгорания.
Холодильники морской воды на Wa 201 состояли из 1100 трубок диаметром 11/14 мм м длиной 3500 мм. Его мощность составляла 900 м³ морской воды в час и 150 м³ конденсата в час.
На XVII В входящая и вытекающая морская вода отбиралась и удалялась 3 соплами на корпусе, находящимися в районе турбинного отсека. При скорости 26 узлов скорость протока воды составляла 2850 м³ в час.
Насос для отбора конденсата фирмы Кляйне-Шанцлин при 3500 об/мин имел мощность 185 м³ в час. Он приводился в действие электродвигателем AEG-AWV 59 мощностью 15,3 л.с.
Газовый сепаратор по давлением 6,8 м³ собирал остатки конденсата из С02 и водяного пара и удалял их за борт. С02 за бортом относительно быстро растворялся в морской воде, не оставляя заметного слсда на поверхности воды. След мог появиться однако при использовании топлива, содержащего свободный азот, например декалина.
Перекись водорода на подлодках Вальтера хранилась в специальных ёмкостях из пластмассы. Этот пластик получали путем прибавки пластификатора в поливинилхлорид (НВХ). Ёмкости изготавливали, используя листы IIBX толщиной 5 мм. Толщина полученного пластика марки «Миполам» составляла 3 мм. Емкости имели горловины для заливки и опоражнивания, их закрепляли с помощью петель на трубчатых тягах. «Миполам» выпускала фирма «Динамит-АГ» (прежде принадлежавшая Альфреду Нобелю и Ко) в Тройсдорфе под Кёльном. На подлодках серии XVII В было установлено четыре труппы ёмкостей: 9 в передней части корпуса и 8 – в задней, всего 6 т перекиси водорода в легком корпусе лодки. Они были отделены от прочного корпуса съёмными пластинами. Подача перекиси осуществлялась благодаря наружному давлению воды, которая сжимала мягкие пластиковые ёмкости до опустошения.

Чертёж электродвигателя АТ 98 подлодки XVII В.

Пульт управления турбины в подлодке XVII серии. Он располагался на боковой стороне водонепроницаемой переборки турбинного отсеки. Под панелью с измерительными приборами находилась консоль с 5 штурвалами ручного привода. Самый большой штурвал (слева) относился к трёхпозиционному переключателю. Три малых штурвала в центре служили для управления клапанами турбины на входе в каталитическую камеру. Правый из них – штурвал 4-х позиционного регулятора подачи смеси, переключатели, расположенные над ним, служили для управления клапанами впрыска топлива в камере сгорания. Два штурвала справа ни стенке водонепроницаемой переборки с контрольными стеклянными трубками относились к прибору блокировки воды. Над ними – консоль (на фото плохо заметная) с 7 вентилями для быстрого запуска турбины и 5 вентилями для осушения турбины, каталитической камеры и сепаратора.
Прочитали книгу? Предлагаем вам поделится своим впечатлением! Ваш отзыв будет полезен читателям, которые еще только собираются познакомиться с произведением.
Уважаемые читатели, слушатели и просто посетители нашей библиотеки! Просим Вас придерживаться определенных правил при комментировании литературных произведений.
Просьба отказаться от дискриминационных высказываний. Мы защищаем право наших читателей свободно выражать свою точку зрения. Вместе с тем мы не терпим агрессии. На сайте запрещено оставлять комментарий, который содержит унизительные высказывания или призывы к насилию по отношению к отдельным лицам или группам людей на основании их расы, этнического происхождения, вероисповедания, недееспособности, пола, возраста, статуса ветерана, касты или сексуальной ориентации. Просьба отказаться от оскорблений, угроз и запугиваний. Просьба отказаться от нецензурной лексики. Просьба вести себя максимально корректно как по отношению к авторам, так и по отношению к другим читателям и их комментариям.
Надеемся на Ваше понимание и благоразумие. С уважением, администратор My-Books.me.
Оставить комментарий
-
Александра15 январь 09:37
Очень интересная книга! Особенно, если любишь психологию и хочешь понимать себя и других. Обязательно послушаю до конца. Спасибо....
Кригер Борис – Гнев
-
Галина25 май 13:02
Очень уважаю Артема Шейнина, книга замечательная, очень мне близкая по духу.Перечитываю уже второй раз, столько пережитого и не...
Мне повезло вернуться - Артем Шейнин
-
Екатерина11 январь 08:05
Доброе утро. Подскажите пожалуйста как сохранять книги, ставить закладки?...
Подонок - Анастасия Леманн