Броненосцы типа «Канопус», 1896–1922 гг. - Владимир Арбузов
Книгу Броненосцы типа «Канопус», 1896–1922 гг. - Владимир Арбузов читаем онлайн бесплатно и без регистрации! Читать онлайн вы можете не только на компьютере, но и на андроид (Android), iPhone и iPad. Наслаждайтесь!
160 0 17:18, 26-05-2019Книга Броненосцы типа «Канопус», 1896–1922 гг. - Владимир Арбузов читать онлайн бесплатно без регистрации
На корабле планировалась установка 6 24-дм прожекторов: по два на каждом мостике и по одному на мачтах, на “Формидабле” 2-х бесштоковых якорей системы Холла, 1 системы Буерса, на остальных броненосцах этого типа 3 системы Холла.

Броненосец “Формидабл". 1901 г.
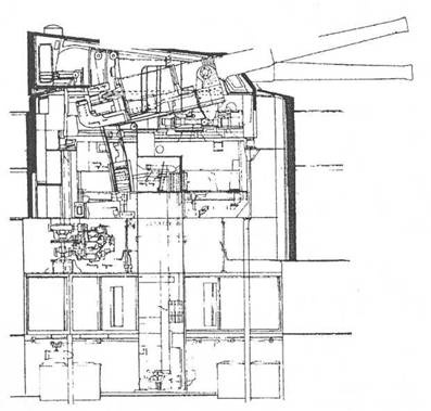
(Продольный разрез башенной установки для двух 12-дм орудий) Из книги О. Parkes British Battleships. London. 1966.

Броненосец “Иррезистибл". 1902 г.
(Продольный разрез башенной установки для двух 12-дм орудий) Из книги Burt R.A. British Battleships 1889-1904. L. 1988.
Экипаж насчитывал 711 человек на “Формидабле” в 1910 году, на “Имплакейбле” 361 человек в 1918 году (сокращенный) и 788 человек на “Иррезистибле”.
На этих кораблях 12-дм орудия марки МК IX с длиной ствола в 40 калибров были разработаны и изготовлены заводами “Виккерса”, и эта серия броненосцев получила их первыми. Эти орудия заметно отличались от старых марки МК VIII, которыми вооружили броненосцы типов “Маджестик” и “Канопус”. Основные их отличия были следующими: выросла прочность ствола, они были на 4 тонны тяжелее, больший заряд позволял увеличивать начальную скорость стрельбы, эти орудия имели нарезку системы Виккерса и были снабжены замком системы “Уелина”.
Новые орудия изготовили из стали, и их стволы состояли из нескольких труб, скрепленных стальной проволокой и накрывались сверху кожухом. Это была очень прочная конструкция, и они, будучи на вооружении, заслужили высокую репутацию.
Правда, хорошую репутацию заслужили и орудия МК VIII. Но все же представляет интерес критический отзыв капитана 1 ранга Перси Скотта, содержавшийся в большом докладе, посвященном артиллерии, написанном им в 1903-1904 годах: “12-дм орудие марки VIII было спроектировано 11 лет назад, и хотя мощь его, по сравнению с предшественниками, выросла, сейчас оно устарело и не может считаться первосортным, так же, как и корабли, на которых оно установлено.
У этого орудия есть большой дефект во внутренней трубе. Первоначальная идея при его проектировании заключалась в том, что во время выстрела из-за высокой начальной скорости снаряда, под воздействием пороховых газов будет происходить быстрый износ ствола и во избежание этого во внешнюю трубу был помещен тонкий внутренний цилиндр (лейнер). Планировалось, что в случае износа ствола, эрозии и откола частей, его с легкостью можно будет заменить, при этом расходы будут весьма незначительны. На самом деле эта экономия фальшива, о чем свидетельствуют следующие факты.
1. Почти невозможно в точности сохранить прежние параметры внутренней и внешней трубы из-за их тесного соприкосновения друг с другом.
2. После пристрелочных выстрелов и первых выстрелов по цели некоторые части внутренней трубы испытывают большие нагрузки по сравнению с другими частями ствола, поэтому они надламываются и частично находятся без поддержки, что может привести к раскалыванию ствола.
3. Тонкая внутренняя труба во время прохождения через её нарезы снаряда деформируется, снаряд плохо центруется, и от этого страдает точность стрельбы.
Достаточно рассказать о том, как в Гибралтаре, куда я прибыл для руководства стрельбой на большие дистанции бывшего флота Канала, я был свидетелем повреждений 12-дм орудий этого типа.
Прошло три недели, и я был направлен на “Маджестик” в качестве судьи во время призовых стрельб. Я находился на крыше башни “А”. Во время стрельбы часть внутренней трубы одного из орудий этой башни была вырвана и сброшена за борт. Мы этого не заметили, и было произведено еще два выстрела. Куски вылетали наружу и вращались. Их заметил капеллан, находившийся на кватердеке. Они упали рядом с бортом. Еще два подобных случая были не замечены, но следы оных были обнаружены после завершения стрельбы.
Я человек не склонный к панике, но у меня есть нехорошие предчувствия, связанные и с 12-дм орудиями МК IX. Ведь их производственный цикл аналогичен, правда, внутренняя труба у них более толстая. Через некоторое время эти орудия быстро устареют. Также я очень обеспокоен тем, что они унаследуют дефекты орудий МК VII и МК VII”
Броненосцы 1 класса “Формидабл”, “Иррезистибл” и “Имплакейбл”
(Из справочника "Военные флоты и морская справочная книжка на 1899 г.”, изданного в Санкт-Петербурге под редакцией великого князя Александра Михайловича. С.-Пб. 1899 г.)
"Формидабл" строился в Портсмуте и спущен на воду 5 ноября 1898 г. Он по водоизмещению считается самым большим броненосцем в мире. Главный характер его зашиты и вооружения очень отличают его от других броненосцев; он также превосходить прежние суда как ходом, так и количеством своего топлива.
На приложенном здесь чертеже вертикальная бортовая броня затушевана сплошными линиями; барбетная броня и поперечные броневые переборки, спускающиеся покато внутрь судна под некоторым углом и увеличивающие длину цитадели с каждого конца 1 7 футами, затушеваны пунктирными линиями, и наконец, тонкие никелево-стальные листы толщиной в 2 дм и идущие от носовой оконечности 9-дм пояса затушеваны несколько слабее.
Вся бронированная цитадель имеет общую длину 250 ф. Устройство тарана на "Формидабле" отличается от других; вместо того, чтоб быть составленным из двух стальных отливок, соединенных вместе болтами, таран этот отлит из одной целой штуки и заканчивается впереди в виде огромного наперстка; вертикальные и плоские кили еще на расстоянии 45 ф от него скошены под некоторым углом и затем входят в него и надежно с ним скреплены. В таран вработана также стальная крепительная полоса, простирающаяся горизонтально назад до переборок у седьмого шпангоута. Здесь, как и на броненосце "Канопус", пространство между переборками от первого до седьмого шпангоута заполнено пробкой вплоть до верхней палубы.
Кормовой дейдвуд у броненосца совсем срезан, причем непосредственно впереди ахтерштевня сделана выемка на высоту до 11 ф. Эта часть судна представляет сплошную стальную отливку. В носовой части у киля также сделан косой срез, и эта особенность в значительной мере способствует улучшению поворотливости и уменьшению циркуляции.
"Формидабл" принадлежит к классу трех броненосцев, строящихся в Портсмуте, Чатаме и Девонпорте. Все они считаются усовершенствованными "маджестиками" и проектированы сэром Уайтом. Главные их размерения следующие: длина между перпендикулярами 400 ф, общая длина 430 ф, наибольшая ширина 75 ф, водоизмещение 15000 тонн или 16200 тонн при полном грузу угля. Среднее углубление штевней при нормальном водоизмещении 26 ф 9 дм, а при полном грузе угля 28 ф 5 дм. Скорость хода 1 8 узлов, мощность машины 15000 инд. сил, машина тройного расширения, два винта и 20 независимых друг от друга водотрубных котлов Бельвиля с новейшими приспособлениями для экономического сжигания топлива (как на крейсере "Diadem". Котельное паропроизводство будет равняться 300 фунтов давления, а в паровых трубах и в машине рабочее давление будет 250 фунтов. Обыкновенный запас угля 900 тонн, а усиленный дойдет в общем до 2100 тонн. Добавочные 1200 тонн угля будут углублять броненосец на лишние 1 ф 8 дм (считая по дюйму на каждые 60 тонн).
Прочитали книгу? Предлагаем вам поделится своим впечатлением! Ваш отзыв будет полезен читателям, которые еще только собираются познакомиться с произведением.
Уважаемые читатели, слушатели и просто посетители нашей библиотеки! Просим Вас придерживаться определенных правил при комментировании литературных произведений.
Просьба отказаться от дискриминационных высказываний. Мы защищаем право наших читателей свободно выражать свою точку зрения. Вместе с тем мы не терпим агрессии. На сайте запрещено оставлять комментарий, который содержит унизительные высказывания или призывы к насилию по отношению к отдельным лицам или группам людей на основании их расы, этнического происхождения, вероисповедания, недееспособности, пола, возраста, статуса ветерана, касты или сексуальной ориентации. Просьба отказаться от оскорблений, угроз и запугиваний. Просьба отказаться от нецензурной лексики. Просьба вести себя максимально корректно как по отношению к авторам, так и по отношению к другим читателям и их комментариям.
Надеемся на Ваше понимание и благоразумие. С уважением, администратор My-Books.me.
Оставить комментарий
-
Александра15 январь 09:37
Очень интересная книга! Особенно, если любишь психологию и хочешь понимать себя и других. Обязательно послушаю до конца. Спасибо....
Кригер Борис – Гнев
-
Галина25 май 13:02
Очень уважаю Артема Шейнина, книга замечательная, очень мне близкая по духу.Перечитываю уже второй раз, столько пережитого и не...
Мне повезло вернуться - Артем Шейнин
-
Екатерина11 январь 08:05
Доброе утро. Подскажите пожалуйста как сохранять книги, ставить закладки?...
Подонок - Анастасия Леманн