Германские субмарины Тип IXC крупным планом - Сергей В. Иванов
Книгу Германские субмарины Тип IXC крупным планом - Сергей В. Иванов читаем онлайн бесплатно и без регистрации! Читать онлайн вы можете не только на компьютере, но и на андроид (Android), iPhone и iPad. Наслаждайтесь!
160 0 17:45, 25-05-2019Книга Германские субмарины Тип IXC крупным планом - Сергей В. Иванов читать онлайн бесплатно без регистрации

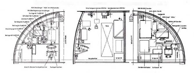
Приборы н оборудование радиоотсека 43 подлодок серии IXС

Модернизация верхней палубы носовой части серии IXС-40

Теоретический чертёж подлодки U 190 серии IXС (модернизация верхней палубы в носовой части)

Варианты камуфляжа U 507

U 154

Мачта шнорхеля (откидная мачта с приводным механизмом)

Мачта шнорхеля (откидная мачта с приводным механизмом)

Мачта шнорхеля на верхней палубе

Основной перископ

Перископ для наблюдения за ночными воздушными целями

Рамка радиолокатора FuMO 30

Рамки радиолокаторов (FuMB-Ant.5 «Samoa» и FuMB- Ant.3 «Bali 1»)

Рамка радиолокатора (тип Н, FuMB 26 «Tunis» – приёмная часть)

Зенитная установка калибра 3,7-см

3,7-см зенитный полуавтомат М 42/LM 43U

2-см счетверённый зенитный автомат 38.43 U

2-см зенитный автомат МК S5/106 с прицелом типа I

2-см счетверённый зенитный автомат 38.43 U (карта смазки)

Головки шнорхелей (варианты)

Задняя часть носового отсека подлодки U190 с видом на водонепроницаемую переборку жилого отсека унтер- офицеров. Слева перед дверью туалета находятся два умывальника с откидной деревянной крышкой, под ними сточные трубы и емкость для грязной воды. Каждый из умывальников имел подсоединение к баку с холодной водой (вода для умывания), который находился в кормовой части обшивки рубки. Справа рядом с дверью туалета батарея парового отопления. У левого борта вспомогательный трюмный насос.

Двухъярусные койки в жилом офицерском отсеке подлодки U 505 с дубовыми шкафами для белья и личных вещей слева. Справа перегородка кают-компании. Койки шириной 62,5 см и длиной 180 см имели снизу спиральные пружины, они были снабжены подушками в наволочках и матрасами. Деревянная мебель и и шкаф со стеклянными дверцами сохранились оригинальными после реставрации.

Справа: вид на заднюю часть жилого отсека унтер-офицеров подлодки U 505 после её захвата американцами в июне 1944 г. Слева двухъярусные койки, в середине приводная рукоятка для открытия и закрытия заливного клапана балластной цистерны № 7. Позади – шкаф для рабочей одежды.

Справа: передняя часть командирского отсека на подлодке U 505 со следами обыска после захвата 4 июня 1944 г. Рядом с диван-кроватью письменный стол с аптечкой на стене. В ящиках над столом находились навигационные инструменты и книги. Над кроватью за открытой деревянной дверью стальная дверь сейфа.
Прочитали книгу? Предлагаем вам поделится своим впечатлением! Ваш отзыв будет полезен читателям, которые еще только собираются познакомиться с произведением.
Уважаемые читатели, слушатели и просто посетители нашей библиотеки! Просим Вас придерживаться определенных правил при комментировании литературных произведений.
Просьба отказаться от дискриминационных высказываний. Мы защищаем право наших читателей свободно выражать свою точку зрения. Вместе с тем мы не терпим агрессии. На сайте запрещено оставлять комментарий, который содержит унизительные высказывания или призывы к насилию по отношению к отдельным лицам или группам людей на основании их расы, этнического происхождения, вероисповедания, недееспособности, пола, возраста, статуса ветерана, касты или сексуальной ориентации. Просьба отказаться от оскорблений, угроз и запугиваний. Просьба отказаться от нецензурной лексики. Просьба вести себя максимально корректно как по отношению к авторам, так и по отношению к другим читателям и их комментариям.
Надеемся на Ваше понимание и благоразумие. С уважением, администратор My-Books.me.
Оставить комментарий
-
Александра15 январь 09:37
Очень интересная книга! Особенно, если любишь психологию и хочешь понимать себя и других. Обязательно послушаю до конца. Спасибо....
Кригер Борис – Гнев
-
Галина25 май 13:02
Очень уважаю Артема Шейнина, книга замечательная, очень мне близкая по духу.Перечитываю уже второй раз, столько пережитого и не...
Мне повезло вернуться - Артем Шейнин
-
Екатерина11 январь 08:05
Доброе утро. Подскажите пожалуйста как сохранять книги, ставить закладки?...
Подонок - Анастасия Леманн