Знаменитый универсант Виктор Николаевич Сорока-Росинский. Страницы жизни - Рива Шендерова
Книгу Знаменитый универсант Виктор Николаевич Сорока-Росинский. Страницы жизни - Рива Шендерова читаем онлайн бесплатно и без регистрации! Читать онлайн вы можете не только на компьютере, но и на андроид (Android), iPhone и iPad. Наслаждайтесь!
188 0 11:38, 07-05-2019Книга Знаменитый универсант Виктор Николаевич Сорока-Росинский. Страницы жизни - Рива Шендерова читать онлайн бесплатно без регистрации
А в другие дни - я одна, иногда с кем-то из младших сестер.
Но всегда нас ожидал праздничный стол и хозяин, полностью готовый к приему гостей - аккуратно выбритый, подстриженный и причесанный, сорочка с галстуком, пиджак застегнут на все пуговицы. Иногда пили кофе или какао со сгущенным молоком, на стол в таком случае подавалось печенье или сухарики. Грязную посуду мы всегда мыли и тщательно вытирали, Виктор Николаевич тут же ее расставлял по местам.
За два-три дня до прихода я, по просьбе Виктора Николаевича, звонила ему. В трубке раздавался знакомый голос: «Слушаю». Я называла себя. В ответ: «А, Рива, очень рад. Приходи (называл день и час)». Я никогда не опаздывала. Виктор Николаевич опозданий не терпел, считал их признаком плохого воспитания и дурного тона.

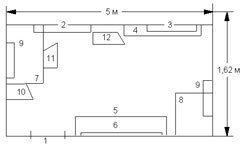
План комнаты Виктора Николаевича: 1 - дверь; 2 - окно с форточкой, шторой и подоконником; 3 - окно в глухую стену, плотно заставленное большим буфетом; 4 - большой высокий буфет; 5 - кровать, превращенная в тахту; 6 - ковер над кроватью; 7 - обеденный стол под клеенкой, служивший Виктору Николаевичу рабочим столом, здесь же он ел, когда был один; 8 - выдвижной столик-тумбочка, его использовали для приема гостей, перемещая между кроватью-тахтой и буфетом; 9 - две книжные полки; 10, 11, 12 - стулья.
Постараюсь описать эту дивную комнату, с которой связаны чудесные воспоминания. Она выходила двумя окнами во двор. Правое окно - в глухую стену, расположенную совсем рядом. Это окно навсегда было закрыто большим, вместительным, со многими ящиками и отделениями буфетом. По-моему, там хранилось все имущество Виктора Николаевича. Вдоль другой, параллельной стены стояла узкая кровать, покрытая ковром. Получалась тахта, на ней помещалось два-три человека. В левой короткой части комнаты - обеденный стол, покрытый клеенкой. Там Виктор Николаевич работал - писал, читал. Над столом - небольшая полка с книгами, толстыми тетрадями и фарфоровыми фигурками - персонажами «Мертвых душ» и «Ревизора». Виктор Николаевич сам купил этот набор, он был замечательно выполнен ленинградскими художниками. По правой короткой стенке маленькая тумбочка (она и служила гостевым столиком для «больших приемов»), ее можно было выдвинуть, точнее - вдвинуть или придвинуть к кровати. Над тумбочкой - еще одна полочка с толстыми тетрадями и маленьким бюстом А. В. Суворова. На рабочем столе - настольная лампа. Над кроватью - небольшой ковер, настенная лампа и иконка овальной формы в легкой деревянной рамке с изображением Михаила Архангела. Видя наше изумление (дети атеистического времени), Виктор Николаевич просто сказал, указывая на икону: «Это родительское благословение. Я с ним не расстаюсь». С потолка спускалась чрезвычайно симпатичная лампа - соединенные треугольником небольшие трубки дневного света, накрытые вместо абажура красивым крепдешиновым платком в крупную красно-сине-белую клетку. Возле рабочего стола - два стула, третий - между буфетом и подоконником «действующего окна. На окне - штора. На подоконнике и под ним - бутылки хороших марочных вин. Потом к ним присоединилось «Российское полусладкое», слегка газированное. Виктор Николаевич любил его, а еще более - купаж, который составлял из какого-либо грузинского и «Российского полусладкого». Иногда «Российское» добавлял к хересу или мадере.
За столом Виктор Николаевич был неизменно доброжелателен и вел себя не как наш наставник, учитель, воспитатель, а как исключительно радушный хозяин. И мы себя чувствовали свободно и уютно. Сорока-Росинский внимательно расспрашивал о каждой из нас, радовался нашим успехам, вникал в планы, поддерживал. Разговор не прерывался ни на миг. Учитель любил расспрашивать Арину о Новгороде (тогда его не называли Великим). В этом городе Виктор Николаевич учился и окончил гимназию, прекрасно знал героическую и трагическую историю новгородской земли. Любил достопримечательности этого города - Кремль, старинные фрески Феофана Грека, Юрьев монастырь, Ярославово Дворище, языческую Перынь, дивный Волхов.
Учитель искренне горевал, зная, как чудовищно прошлась по Новгороду война. Виктор Николаевич хорошо помнил, что у Арины есть близкие родственники в тех краях (все знал о нас!), она бывает там во время летних каникул, она - правдивый свидетель того, что осталось от города, как его восстанавливают. Слушая рассказы, мы в то же время учились пробовать и пить разные вина, есть закуски, пользоваться ножом. Заставил распробовать маслины и сделал их и рокфор моим лакомством навсегда. Много рассказывал о сырах - твердых, мягких, плавленых: откуда пошли, какие страны и в чем именно преуспели. Подавал фрукты - яблоки, мандарины.
Задушевные беседы Виктор Николаевич вел со мной одной. Из них я однажды узнала, что еще в 1953 году Виктор Николаевич оставил нашу школу и перешел совсем близко к дому, на Лермонтовский вблизи Садовой. А вскоре Виктор Николаевич рассказал мне, что вовсе оставил работу, вышел на пенсию. Сказал: «Понимаешь, Рива, я совсем плохо стал видеть. Даже у сидящих на первых партах вместо лиц вижу какие-то блины. Нельзя работать с классом, не видя лиц своих учеников». Но работать Виктор Николаевич не перестал. Он изобрел новинку - «орфографическое лото»; из школы, где преподавал в конце своей педагогической деятельности, по договоренности с учителем русского языка и завучем, ему присылали «партию из семи-восьми человек - абсолютных двоечников». С ними Виктор Николаевич играл в это лото в прихожей ежедневно по одному часу после их уроков до тех пор, пока они не переходили в разряд твердых троечников. Тогда Виктор Николаевич звонил в школу и просил «новую партию». «Мои идиотики» - так ласково называл «ведомых» Виктор Николаевич. Он был чрезвычайно увлечен своим лото, видел большую перспективу в его использовании, но никто не хотел вдуматься, перестроиться, внедрить новинку. Куда бы Виктор Николаевич ни обращался - не с просьбой, а с предложением взять его работу на апробацию, разумеется, без вознаграждения, - ни одна школа, ни один методический кабинет, ни одна кафедра русского языка не решились на эксперимент. Но Виктор Николаевич - внешне по крайней мере - не унывал, продолжал совершенствовать свое детище. Много писал, но никогда не рассказывал и не показывал мне своей работы. И лото я никогда не видала. «Тебе не нужно. Ты и так грамотная», - вот что я услышала в ответ на свою просьбу показать мне лото. Я не настаивала. Молода была и глупа. По словам А. С. Пушкина, «мы ленивы и нелюбопытны». Полностью отношу к себе в этом случае.
Говорили мы с Виктором Николаевичем о многом. О несчастной любви - он сказал: «Несчастной любви не бывает. Любить гораздо важнее, чем быть любимым». О возможности или невозможности любви с первого взгляда - Виктор Николаевич верил в такую возможность, рассказал, что однажды с площадки стоящего поезда он увидел на площадке встречного и тоже стоящего поезда женщину. Они обменялись такими взглядами, что он до сих пор - через сорок лет - помнит ее. Поезд тронулся, они не успели и не смогли вымолвить друг другу ни слова, только помахали друг другу рукой. Виктор Николаевич был уверен, что мимо прошла любовь.
Прочитали книгу? Предлагаем вам поделится своим впечатлением! Ваш отзыв будет полезен читателям, которые еще только собираются познакомиться с произведением.
Уважаемые читатели, слушатели и просто посетители нашей библиотеки! Просим Вас придерживаться определенных правил при комментировании литературных произведений.
Просьба отказаться от дискриминационных высказываний. Мы защищаем право наших читателей свободно выражать свою точку зрения. Вместе с тем мы не терпим агрессии. На сайте запрещено оставлять комментарий, который содержит унизительные высказывания или призывы к насилию по отношению к отдельным лицам или группам людей на основании их расы, этнического происхождения, вероисповедания, недееспособности, пола, возраста, статуса ветерана, касты или сексуальной ориентации. Просьба отказаться от оскорблений, угроз и запугиваний. Просьба отказаться от нецензурной лексики. Просьба вести себя максимально корректно как по отношению к авторам, так и по отношению к другим читателям и их комментариям.
Надеемся на Ваше понимание и благоразумие. С уважением, администратор My-Books.me.
Оставить комментарий
-
Александра15 январь 09:37
Очень интересная книга! Особенно, если любишь психологию и хочешь понимать себя и других. Обязательно послушаю до конца. Спасибо....
Кригер Борис – Гнев
-
Галина25 май 13:02
Очень уважаю Артема Шейнина, книга замечательная, очень мне близкая по духу.Перечитываю уже второй раз, столько пережитого и не...
Мне повезло вернуться - Артем Шейнин
-
Екатерина11 январь 08:05
Доброе утро. Подскажите пожалуйста как сохранять книги, ставить закладки?...
Подонок - Анастасия Леманн