Строительство дома быстро и дешево - Евгений Симонов
Книгу Строительство дома быстро и дешево - Евгений Симонов читаем онлайн бесплатно и без регистрации! Читать онлайн вы можете не только на компьютере, но и на андроид (Android), iPhone и iPad. Наслаждайтесь!
290 0 09:22, 25-05-2019Книга Строительство дома быстро и дешево - Евгений Симонов читать онлайн бесплатно без регистрации
Приступая к строительству собственного дома, многие забывают об участке. Точнее, помнят, но заняться его планировкой собираются в отдаленном будущем: «Сначала построим дом, а ландшафтный дизайн подождет». Такое рассуждение, логичное на первый взгляд, в корне неверно. В результате оказывается, что великолепное плодовое дерево, отлично прижившееся и уже дающее плоды, нужно пересаживать в другое место, потому что оно мешает постройке гаража. Или выясняется, что дом затеняет идеальное место для клумбы. Или вы построили баню там, где лучше было бы разместить площадку для пикников, а теперь ее приходится устраивать у забора вдоль улицы и жарить шашлык на глазах у всего поселка.
Чтобы подобных казусов не возникало, стоит заняться планированием участка заранее. Ведь на нем разместится не только жилой дом, но и различные хозяйственные постройки (начиная от гаража и заканчивая сарайчиком для сельхозинвентаря), баня, парники, бассейн, декоративные водоемы, сад, клумбы и др. В конечном итоге все элементы должны составить гармоничный ансамбль, чего невозможно добиться без точного плана.
Конечно, если вы приобрели участок площадью 1 гектар, то можете не беспокоиться: места хватит для воплощения любых ваших фантазий. Но если участок относительно невелик (20–30 соток), то нужно как следует постараться, чтобы на нем поместилось все, о чем мечтаете вы и члены вашей семьи, и чтобы он при этом не выглядел нагромождением различных элементов, а был красивым и удобным для жизни.
Процесс планирования земельного участка принято разделять на три стадии:
♠ разделение всей территории на фрагменты;
♠ определение местоположения дома;
♠ определение местоположения других построек и сооружений: хозяйственных построек, гаража, бани, парников и теплиц, сада и огорода, бассейна, декоративных водоемов и т. п.
На первой стадии следует определить размеры, форму и местоположение участка. Оптимально, если удастся свести к минимуму протяженность участка вдоль улицы. В таком случае затраты на устройство дорог и пешеходных дорожек, сетей водоснабжения, канализации, электроснабжения и т. д. будут снижены.
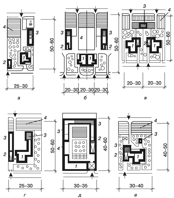
Варианты планировки земельных участков представлены на рис. 2.1.

Рис. 2.1 Рациональная планировка земельных участков для индивидуальных жилых домов (размеры указаны в метрах): а — хозсооружения сблокированы в разных зданиях; б — все хозсооружения сблокированы в одном здании; в — гараж сблокирован с домом, хозсооружения отделены; г — хозсооружения образуют двор; д — хозсооружения образуют периметр; е — единое комплексное здание: 1 — дом; 2 — гараж; 3 — хозсооружения; 4 — сад, огород
Как видите, возможно использование двух способов:
♠ дома располагаются отдельно от хозяйственных построек (см. рис. 2.1, а — в);
♠ хозяйственные постройки примыкают к жилым домам (см. рис. 2.1, г — е).
Первый способ можно применять в любых климатических условиях независимо от типа жилого дома. Второй способ в основном используется либо в суровых климатических условиях (варианты д и е), либо в жарком климате (варианты г и д).
С точки зрения планирования участка особенно важно определиться с этажностью дома. Часто, если участок невелик, а семья большая, приходится идти по пути увеличения количества этажей. Так, дом общей площадью 250–300 м2 может иметь четыре этажа. В результате получается этакая Эйфелева башня, устремляющаяся к облакам. Замечу, что собственный многоэтажный дом — не лучший выход из положения. Во-первых, он обходится дороже, чем одно-двухэтажное строение. Во-вторых, лестницы отнимают немало драгоценного места. В-третьих, не всем легко подниматься по лестницам, и если в семье есть пожилые люди, то им нужно отводить комнаты на первом этаже. Но если дом узкий и высокий, то комнат может попросту не хватить: обычно на первом этаже размещаются кухня, санузел, кладовки, прихожая, и в лучшем случае остается место лишь для одной комнаты. Установка лифта стоит дорого. Кроме того, такой дом неудобно убирать. Либо придется носить по многочисленным лестницам пылесос, ведро с водой и т. д., либо на каждом этаже держать по пылесосу. Так что лучше сразу приобрести участок попросторнее.
Еще один не самый удачный вариант — совмещение дома и хозяйственных построек. Конечно, на плане такое здание выглядит довольно привлекательно. Оно компактно, занимает на участке минимум места, из дома обычно запланированы проходы в гаражи, мастерские, кладовые. Однако есть и минусы. Постройка подобного комплекса обходится дороже, чем размещение хозяйственных построек отдельно от дома. Кроме того, при раздельном строительстве есть возможность производить работы поэтапно. То есть сегодня вы строите дом, завтра — гараж, послезавтра — сарай, затем — баню и др.
Не так давно было модно совмещать под одной крышей все, что только можно. Особенно это касалось гаражей, бассейнов, бань и саун. В частности, вместо того, чтобы построить отдельное здание для бассейна, его размещали в цокольном этаже. Мотивация проста: так получается дешевле, да и место экономится. Однако практика показала, что дешевизной тут и не пахнет. Ведь в бассейне или бане всегда повышенная влажность. А следовательно, для этих помещений требуется усиленная гидро- и пароизоляция. Ну а ремонт обходится раза в три дороже, чем в случаях, когда бассейн, баня или сауна располагаются отдельно.
Что касается гаража, то удобно, когда из него можно попасть прямо в дом. Особенно это хорошо дождливыми осенними или морозными зимними днями. Но есть один нюанс. Запахи автомобильного топлива, масел, различной автокосметики, выхлопных газов неизбежно просачиваются в жилые комнаты. Кроме того, в холодное время года нежелательно держать автомобиль в непосредственной близости от отапливаемых помещений. Наконец, гараж относится к числу помещений повышенной пожарной опасности и требует соответствующих мер предосторожности.
Однако если нет возможности расположить гараж отдельно от дома, то приходится прибегать к совмещению (рис. 2.2–2.4). При этом важно помнить об устройстве хорошей вентиляции.

Рис. 2.2. Гараж, примыкающий к дому

Рис. 2.3. Гараж, расположенный непосредственно под жилыми помещениями

Рис. 2.4. Гараж, стоящий отдельно от дома
Прочитали книгу? Предлагаем вам поделится своим впечатлением! Ваш отзыв будет полезен читателям, которые еще только собираются познакомиться с произведением.
Уважаемые читатели, слушатели и просто посетители нашей библиотеки! Просим Вас придерживаться определенных правил при комментировании литературных произведений.
Просьба отказаться от дискриминационных высказываний. Мы защищаем право наших читателей свободно выражать свою точку зрения. Вместе с тем мы не терпим агрессии. На сайте запрещено оставлять комментарий, который содержит унизительные высказывания или призывы к насилию по отношению к отдельным лицам или группам людей на основании их расы, этнического происхождения, вероисповедания, недееспособности, пола, возраста, статуса ветерана, касты или сексуальной ориентации. Просьба отказаться от оскорблений, угроз и запугиваний. Просьба отказаться от нецензурной лексики. Просьба вести себя максимально корректно как по отношению к авторам, так и по отношению к другим читателям и их комментариям.
Надеемся на Ваше понимание и благоразумие. С уважением, администратор My-Books.me.
Оставить комментарий
-
Александра15 январь 09:37
Очень интересная книга! Особенно, если любишь психологию и хочешь понимать себя и других. Обязательно послушаю до конца. Спасибо....
Кригер Борис – Гнев
-
Галина25 май 13:02
Очень уважаю Артема Шейнина, книга замечательная, очень мне близкая по духу.Перечитываю уже второй раз, столько пережитого и не...
Мне повезло вернуться - Артем Шейнин
-
Екатерина11 январь 08:05
Доброе утро. Подскажите пожалуйста как сохранять книги, ставить закладки?...
Подонок - Анастасия Леманн