Баня, сауна. Строим своими руками - Иван Никитко
Книгу Баня, сауна. Строим своими руками - Иван Никитко читаем онлайн бесплатно и без регистрации! Читать онлайн вы можете не только на компьютере, но и на андроид (Android), iPhone и iPad. Наслаждайтесь!
240 0 10:57, 13-05-2019Книга Баня, сауна. Строим своими руками - Иван Никитко читать онлайн бесплатно без регистрации
Площадь парилки чаще всего составляет 7–9 м2. Ее лучше спроектировать квадратной. Чтобы не выходил пар, дверь в парильное отделение делают с высоким порогом и низкой коробкой. Печь-каменку обычно устанавливают в углу у двери. (Подробнее о печах для бани будет рассказано в одной из следующих глав.) Для такого типа бань оптимальным будет размер 2,5 × 4,5 м.
Предлагаю вашему вниманию несколько проектов бань, одни из которых рассчитаны на небольшую семью, а другие подойдут для проведения банных вечеринок в компании друзей.
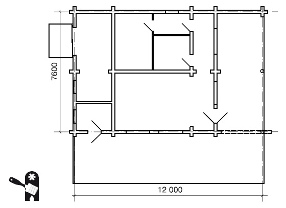
Одноэтажная деревянная баня (рис. 1.1, 1.2). Общая площадь — 25 м2. Материал рубленых стен — архангельская сосна (место произрастания — северные районы Архангельской области). Диаметр вершины бревна — 20–22 см. Крыша имеет деревянную стропильную конструкцию.

Рис. 1.1. Одноэтажная баня из дерева

Рис. 1.2. План одноэтажной деревянной бани
Деревянная баня — гостевой дом с мансардным этажом (рис. 1.3, 1.4). Общая площадь — 50 м2. Материал рубленых стен — архангельская сосна. Диаметр вершины бревна — 20–22 см. Крыша имеет деревянную стропильную конструкцию.

Рис. 1.3. Баня — гостевой дом

Рис. 1.4. План первого этажа
Одноэтажная деревянная баня с террасой (рис. 1.5, 1.6). Общая площадь — 25 м2.Материал рубленых стен — архангельская сосна. Диаметр вершины бревна — 20–22 см. Крыша имеет деревянную стропильную конструкцию.

Рис. 1.5. Деревянная баня с террасой

Рис. 1.6. План бани с террасой
Одноэтажная баня (рис. 1.7, 1.8), которую можно использовать как место для отдыха, так как возле нее спроектирована вместительная терраса. Сама баня относительно небольших размеров, поэтому отлично подойдет как экономичный вариант для семьи из трех-четырех человек.

Рис. 1.7. Баня с вместительной террасой

Рис. 1.8. План бани
Итак, проект бани перед вами. Теперь предстоит составить смету, то есть подробный список всего, что вам придется приобрести.
Примерная смета строительства деревянной бани представлена в табл. 1.1–1.3. Цены приведены в российских рублях. Размер сооружения: 5,5 × 8,76 м по осям. Фундамент — ленточный железобетонный.
Таблица 1.1. Фундамент

Таблица 1.2. Сборка сруба

Таблица 1.3. Крыша

Итого:
✓ по материалу — 324 718,1 р.;
✓ работа — 252 715 р.;
✓ транспортные расходы — 25 000 р.
Общая стоимость: 602 433,1 р.
Несомненно, лучшая баня — срубленная из хорошо высушенных бревен и досок. Деревянные стены быстрее нагреваются и хорошо впитывают влагу. В такой бане легче поддерживать нужную температуру и влажность. На богатой лесами Руси бани всегда строили из дерева.
Но времена изменились, и сегодня для возведения бани используют не только дерево, но и камень, кирпич, пеноблок. Понадобятся цемент, глина, песок, шифер, древесно-стружечные и древесно-волокнистые плиты, минеральные и органические утеплители, стекла, асбестоцементные трубы, пароизолирующие пленки и листы, кровельное железо и некоторые другие материалы. Если вы ранее никогда не сталкивались со строительством довольно крупных сооружений, вам будет полезно заранее узнать о некоторых свойствах этих материалов.
Самый нужный материал для строительства бани — это дерево, из которого можно построить, как и много веков назад, всю баню, от фундамента до крыши.
Опорные подушки, столбы для фундамента, первый венецстен и лаги для пола делают из дуба, высушенного на специальных подставках под навесом.
Бревна, доски и брусья из качественной смолистой сосны служат для укладки 3–4-го нижних венцов стен, пола и матицы потолка. Для этих конструкций, а также для постройки фундамента прекрасно подходит и лиственница.
Для верхних венцов, потолка и обшивки стен используются пиломатериалы из легкой белой ели и липы. Эти породы дерева хорошо поглощают влагу и звуки. Говорят, что такая древесина «дышит, как живой организм».
Полки и скамейки лучше всего делать из липовых досок и брусьев, создающих ощущение теплоты и мягкости.
На сегодняшний день несомненные лидеры в строительстве из дерева — профилированный брус и оцилиндрованное бревно (рис. 1.9, 1.10).

Рис. 1.9. Профилирование бруса (а) и оцилиндровка бревна (б)

Рис. 1.10. Оцилиндрованное бревно и профилированный брус разной толщины
Прочитали книгу? Предлагаем вам поделится своим впечатлением! Ваш отзыв будет полезен читателям, которые еще только собираются познакомиться с произведением.
Уважаемые читатели, слушатели и просто посетители нашей библиотеки! Просим Вас придерживаться определенных правил при комментировании литературных произведений.
Просьба отказаться от дискриминационных высказываний. Мы защищаем право наших читателей свободно выражать свою точку зрения. Вместе с тем мы не терпим агрессии. На сайте запрещено оставлять комментарий, который содержит унизительные высказывания или призывы к насилию по отношению к отдельным лицам или группам людей на основании их расы, этнического происхождения, вероисповедания, недееспособности, пола, возраста, статуса ветерана, касты или сексуальной ориентации. Просьба отказаться от оскорблений, угроз и запугиваний. Просьба отказаться от нецензурной лексики. Просьба вести себя максимально корректно как по отношению к авторам, так и по отношению к другим читателям и их комментариям.
Надеемся на Ваше понимание и благоразумие. С уважением, администратор My-Books.me.
Оставить комментарий
-
Александра15 январь 09:37
Очень интересная книга! Особенно, если любишь психологию и хочешь понимать себя и других. Обязательно послушаю до конца. Спасибо....
Кригер Борис – Гнев
-
Галина25 май 13:02
Очень уважаю Артема Шейнина, книга замечательная, очень мне близкая по духу.Перечитываю уже второй раз, столько пережитого и не...
Мне повезло вернуться - Артем Шейнин
-
Екатерина11 январь 08:05
Доброе утро. Подскажите пожалуйста как сохранять книги, ставить закладки?...
Подонок - Анастасия Леманн